508 823 Carnarvon Street, New Westminster, British Columbia V3M 0N5

Listed for:
$899,999
2 beds
3 baths
Listed 54 days ago
Row / Townhouse for rent: 508 823 Carnarvon Street, New Westminster, British Columbia V3M 0N5

View all 38 photos

Learn more about this property
Listing provided by:
Nu Stream Realty Inc.
MLS® number:
R3052758
Agent:
Ken Cui
*Indicates required field
Name is required
Email is required
Please enter a valid phone number (e.g., 416-111-1111).

About

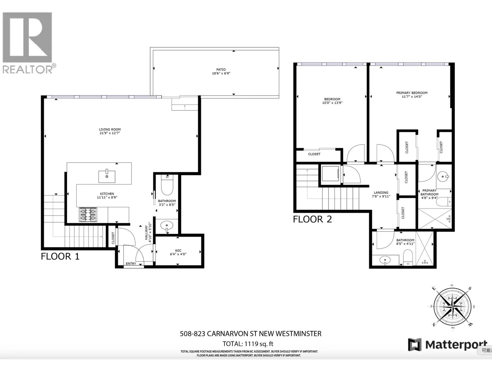
Welcome to Ovation in Downtown New Westminster. This 2-Level, 2 bedroom & den & 2.5 bath Townhome features wide-plank flooring, floor-to-ceiling windows, quartz counters & premium S/S appliances. Enjoy an expansive private patio, perfect for entertaining. Amenities include fitness center, garden, sauna/steam room & 24-hr concierge. Steps to shopping, dining, entertainment & SkyTrain. (id:27476)

Property Highlights

MLS® Number
R3052758
Type
Single Family
Maintenance Fee
776.58
Ownership Type
Strata
Parking Space Total
1

Building

Building Type
Row / Townhouse
Square Footage
1119 sqft
Bathrooms Total
3
Bedrooms Total
2
Amenities
Exercise Centre, Laundry - In Suite, Recreation Centre Recreation, Shopping
Fireplace Present
No
Basement Type
Basement Features
Building Heating Type
Forced air, Heat Pump
Heating Fuel
Building Cooling Type
Air Conditioned

Location

Street Spotlight - For sale