207 1026 Queens Avenue, New Westminster, British Columbia V3M 6B2

Listed for:
$489,900
2 beds
2 baths
Listed 35 days ago
Apartment for rent: 207 1026 Queens Avenue, New Westminster, British Columbia V3M 6B2

View all 24 photos

Learn more about this property
Listing provided by:
Oakwyn Realty Ltd.
MLS® number:
R3070347
Agent:
Pino Cusati
*Indicates required field
Name is required
Email is required
Please enter a valid phone number (e.g., 416-111-1111).

About

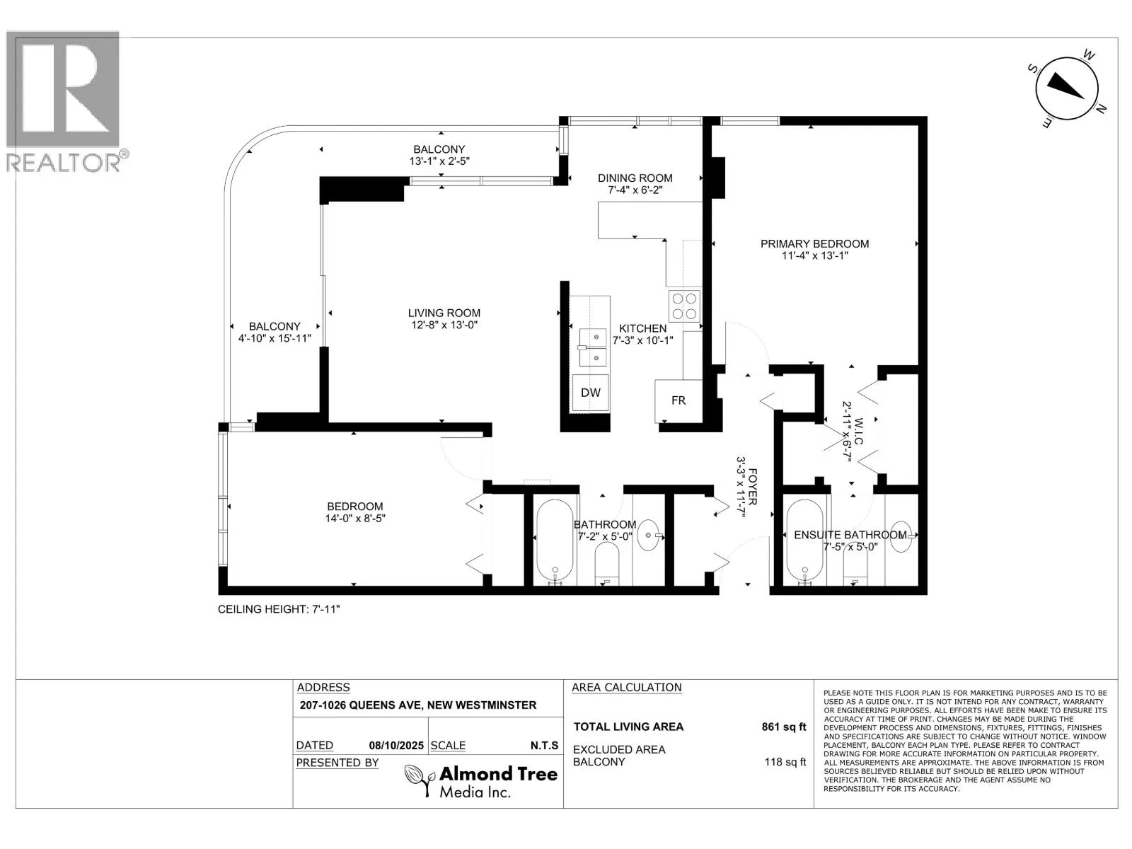
Welcome to Amara Terrace!! Incredible value in this spacious and private 2 bedroom and 2 bath 861sf corner unit featuring a bright and open floor plan w/a large living room for your entertaining!! NEWLY PAINTED!! The unit features a huge covered wrap around balcony w/south west exposure overlooking Fraser River, New West Quay. Well maintained building with updated roof, boilers, elevators, parking membrane, full re-piping of entire building. Amenities include heated outdoor pool w/updated deck membrane, recreation/exercise room, bike room, lush garden common areas!! Walkable to Skytrain, Quay Boardwalk, Shopping, Douglas College. Shared laundry facilities. 1 parking stall, 1 storage locker included. Pets not permitted. New elementary school coming to New West!! Brand New Costco nearby!! (id:27476)

Property Highlights

MLS® Number
R3070347
Type
Single Family
Maintenance Fee
582.50
Ownership Type
Strata
Parking Space Total
1

Building

Building Type
Apartment
Square Footage
861 sqft
Bathrooms Total
2
Bedrooms Total
2
Amenities
Exercise Centre, Shared Laundry Marina, Recreation, Shopping
Fireplace Present
No
Basement Type
Basement Features
Building Heating Type
Baseboard heaters
Heating Fuel
Electric
Building Cooling Type

Location