2706 898 Carnarvon Street, New Westminster, British Columbia V3M 0C3

Listed for:
$639,000
2 beds
2 baths
Listed 29 days ago
Apartment for rent: 2706 898 Carnarvon Street, New Westminster, British Columbia V3M 0C3

View all 31 photos

Learn more about this property
Listing provided by:
eXp Realty
MLS® number:
R3071412
Agent:
Denise Mai
*Indicates required field
Name is required
Email is required
Please enter a valid phone number (e.g., 416-111-1111).

About

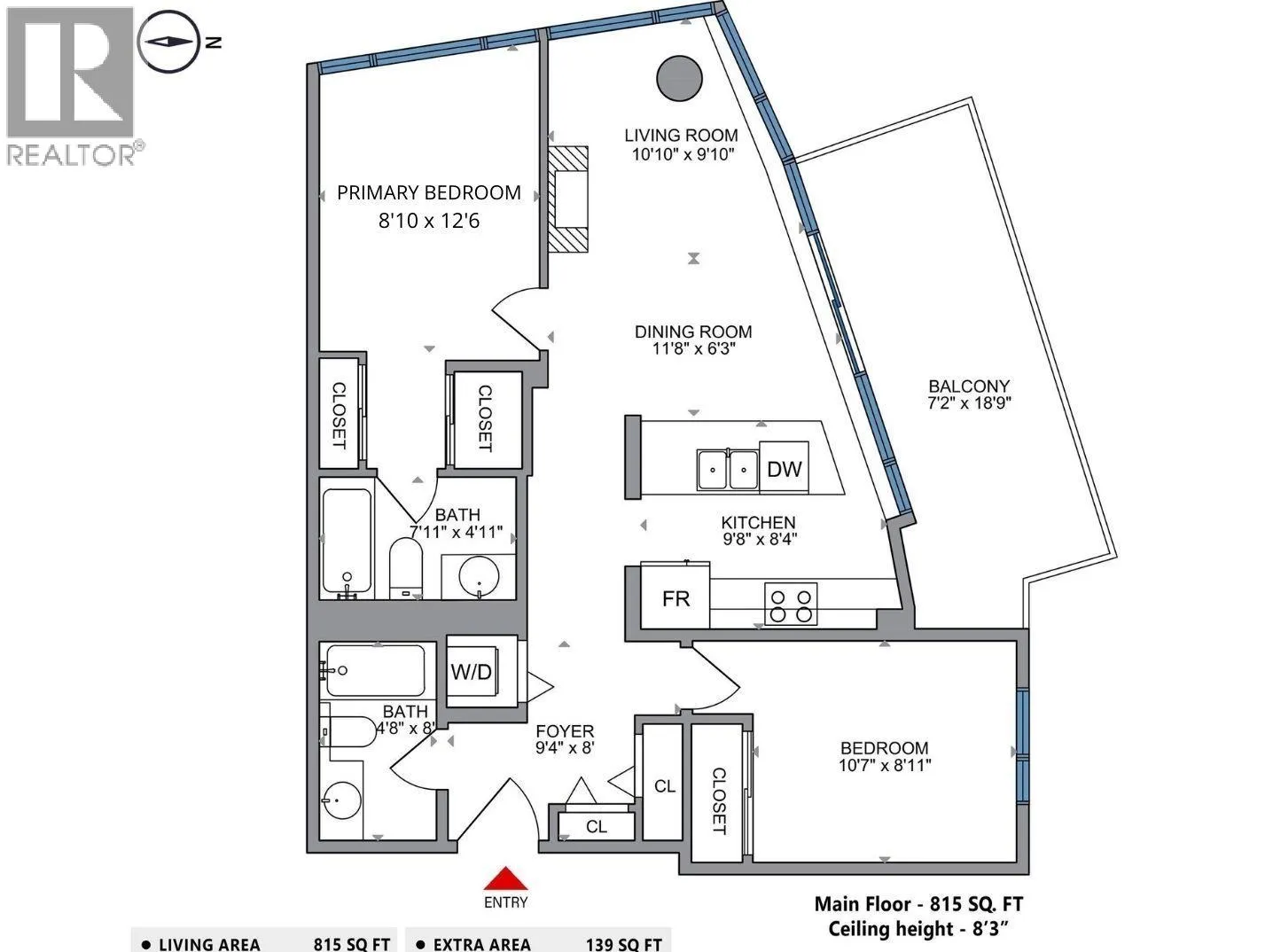
Welcome to Azure 1-where convenience meets breathtaking views! This beautifully designed 2-bedroom, 2-bath home showcases stunning vistas of the Fraser River, city skyline, and surrounding mountains. The open-concept layout features stainless steel appliances and a bright, spacious living area that flows seamlessly onto a generous 145 sq.ft. balcony-ideal for morning coffee, evening unwinding, or hosting friends. Located in the vibrant heart of Downtown New West, you´re just steps to the SkyTrain, shopping, dining, entertainment, and everyday amenities. Whether you're a homeowner or an investor, this is an exceptional opportunity in a high-demand location. Comes complete with 1 parking and 1 locker. (id:27476)

Property Highlights

MLS® Number
R3071412
Type
Single Family
Maintenance Fee
495.39
Ownership Type
Strata
Parking Space Total
1

Building

Building Type
Apartment
Square Footage
815 sqft
Bathrooms Total
2
Bedrooms Total
2
Amenities
Exercise Centre, Laundry - In Suite, Recreation Centre Playground, Marina, Shopping
Fireplace Present
No
Basement Type
Basement Features
Building Heating Type
Baseboard heaters
Heating Fuel
Electric
Building Cooling Type

Location

Street Spotlight - For sale