1703 15 E Royal Avenue, New Westminster, British Columbia V3L 0A9

Listed for:
$949,900
3 beds
2 baths
Listed 29 days ago
Apartment for rent: 1703 15 E Royal Avenue, New Westminster, British Columbia V3L 0A9

View all 40 photos

About

POSTCARD VIEWS. RARE CORNER EXPOSURE. WATERFRONT SOPHISTICATION. Welcome VICTORIA HILL an award-winning address in Fraserview, New Westminster. This generous 3-bed, 2-bath unit showcases an idyllic family layout perfect for family entertaining. Includes; tasteful renovations, newly installed appliances, upgraded flooring, statement lighting, and automatic blinds consistent all throughout the entire home. Enjoy PREMIUM AMENITIES: outdoor pool & hot tub, sauna, gym, lounge, entertainment room, and kids´ play zone. With just moments to transit and a short drive to the NEW Aquatic and Community Centre and Queen's Park. This project has always been special. Comes with 2 PARKING & 1 STORAGE LOCKER. Don't walk, RUN! (id:27476)

Property Highlights

MLS® Number
R3095828
Type
Single Family
Maintenance Fee
697.75
Ownership Type
Strata
Parking Space Total
2

Building

Building Type
Apartment
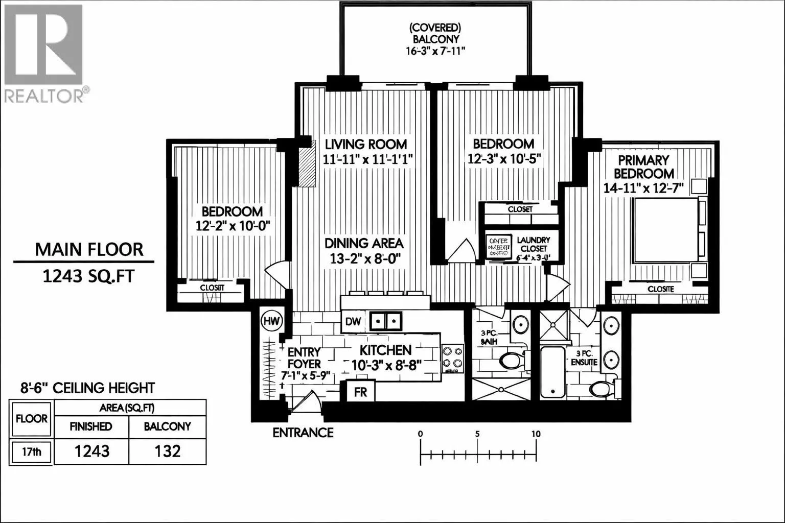
Square Footage
1243 sqft
Bathrooms Total
2
Bedrooms Total
3
Amenities
Exercise Centre, Guest Suite, Laundry - In Suite, Recreation Centre Playground, Golf Course, Marina, Recreation, Shopping
Fireplace Present
No
Basement Type
Basement Features
Building Heating Type
Hot Water
Heating Fuel
Electric
Building Cooling Type

Location

Learn more about this property
Listing provided by:
RE/MAX Select Realty
MLS® number:
R3095828
Agent:
Trace Baldwin
*Indicates required field
Name is required
Email is required
Please enter a valid phone number (e.g., 416-111-1111).

Street Spotlight - For sale