3660 Lobelia Drive, Osoyoos, British Columbia V0H 1V1

Listed for:
$330,000
0 beds
0 baths
Listed 87 days ago
Other for rent: 3660 Lobelia Drive, Osoyoos, British Columbia V0H 1V1

View all 18 photos

Learn more about this property
Listing provided by:
RE/MAX Realty Solutions
MLS® number:
10360039
Agent:
Arshan Gill
*Indicates required field
Name is required
Email is required
Please enter a valid phone number (e.g., 416-111-1111).

About

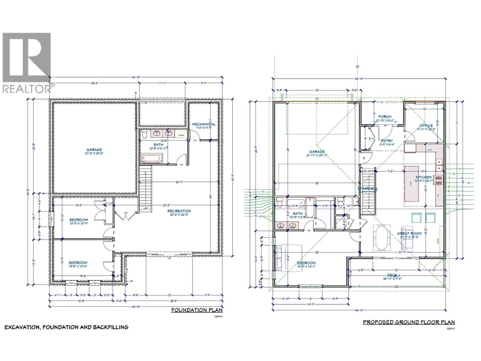
This centrally located vacant lot offers the perfect opportunity to create the home you’ve always envisioned. Positioned just minutes from town, you’ll enjoy quick access to shopping, schools, dining, and everyday amenities, while also being close to renowned wineries and endless recreation options. The lot is ideally suited for a walkout rancher, giving you the flexibility to design a home that blends comfort, functionality, and style. Whether you’re a builder searching for your next project or an individual ready to start fresh, this parcel provides an excellent foundation for your plans. With its combination of convenience and lifestyle, this property strikes the ideal balance between peaceful living and accessibility. Don’t miss this chance to secure a well-located lot in a desirable area and bring your vision to reality. (id:27476)

Property Highlights

MLS® Number
10360039
Type
Vacant Land
Ownership Type
Freehold
Land Size
0.1 ac|under 1 acre

Building

Building Type
Other
Amenities
Recreation
Fireplace Present
No
Basement Type
Basement Features
Building Heating Type
Heating Fuel
Building Cooling Type

Utilities

Water
Municipal water
Utility Sewer
Municipal sewage system

Location