23 Wood Duck Way, Osoyoos, British Columbia V0H 1V5

Listed for:
$349,900
0 beds
0 baths
Listed 133 days ago
Other for rent: 23 Wood Duck Way, Osoyoos, British Columbia V0H 1V5

View all 13 photos

About

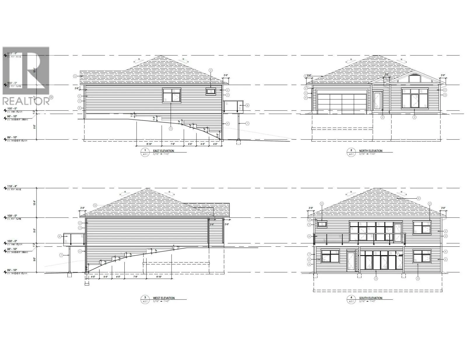
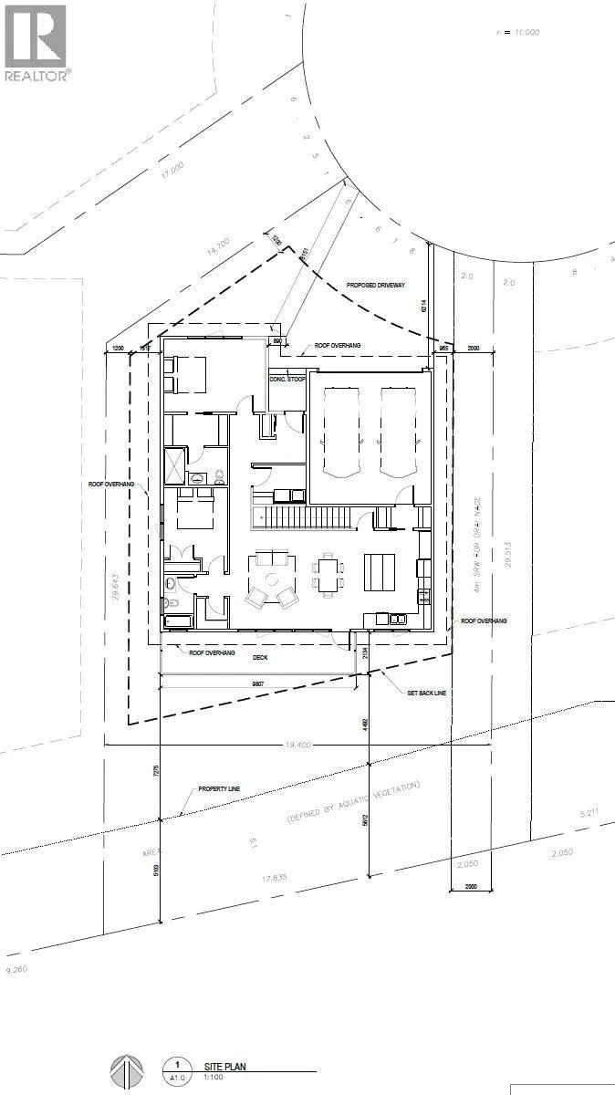
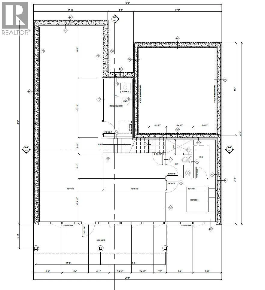
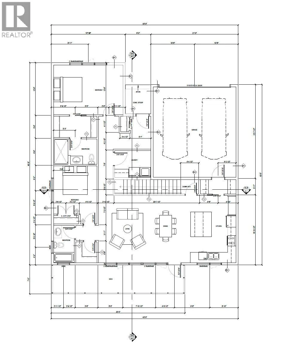
Now available in Osoyoos’s newest subdivision, Meadowlark, this rare waterfront lot offers the perfect opportunity to build your dream home in one of the South Okanagan’s most desirable new communities. Centrally located and close to schools, downtown amenities, golf courses, and recreation, this property combines convenience with the peaceful charm of waterfront living. The lot’s gentle slope is ideally suited for a walkout rancher design with building plans available for your convenience. Whether you’re looking to build your forever home, an investment property, or a seasonal retreat, 23 Wood Duck Way offers flexibility and exceptional value. There’s also an option to purchase this lot individually or as part of a package with other available sites in Meadowlark. Don’t miss this rare opportunity to create your custom home in a growing neighbourhood surrounded by modern builds and stunning natural beauty. (id:27476)

Property Highlights

MLS® Number
10367307
Type
Vacant Land
Ownership Type
Freehold
Land Size
0.15 ac|under 1 acre

Building

Building Type
Other
Fireplace Present
No
Basement Type
Basement Features
Building Heating Type
Heating Fuel
Building Cooling Type

Utilities

Water
Municipal water
Utility Sewer
Municipal sewage system

Location

Learn more about this property
Listing provided by:
RE/MAX Realty Solutions
MLS® number:
10367307
Agent:
Arshan Gill
*Indicates required field
Name is required
Email is required
Please enter a valid phone number (e.g., 416-111-1111).