9400 115 Street Unit# 32, Osoyoos, British Columbia V0H 1V5

Listed for:
$415,000
2 beds
2 baths
Listed 117 days ago
Manufactured Home for rent: 9400 115 Street Unit# 32, Osoyoos, British Columbia V0H 1V5

View all 23 photos

About

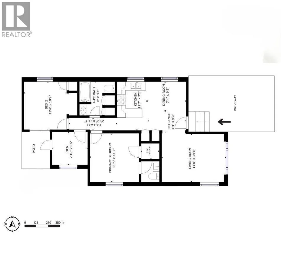
This refreshed 2 bedroom plus den, one-level home offers new flooring throughout, a freshly painted interior and exterior, and an updated ensuite that adds a touch of luxury to your daily routine. The open-concept layout features a bright and welcoming living room with stunning mountain views, and a functional kitchen/dining area. The primary suite has a walk-in closet and private pc ensuite bathroom, while the second bedroom and den offer flexibility for hobbies, guests, or additional storage. A second full 4-piece bath adds to the convenience. Enjoy indoor-outdoor living with sliding doors leading to a private patio and a freshly xeriscaped, low maintenance backyard. perfect for morning coffee or afternoon sunshine. There is a covered carport plus guest parking nearby and clubhouse amenities for socializing and community events. There is a cost-effective strata fee of just $120 per month and it's pet-friendly (1 small dog or cat is welcome). Prime location just minutes to Osoyoos Lake, shopping, golf, and world-class wineries. Discover the charm of Casitas del Sol, a 55+ gated community in sunny Osoyoos. (id:27476)

Property Highlights

MLS® Number
10372934
Type
Single Family
Community Name
Casitas Del Sol
Maintenance Fee
120.00
Ownership Type
Bare Land Condo/Strata
Land Size
0.08 ac|under 1 acre
Parking Space Total
2

Building

Building Type
Manufactured Home
Storeys
1.00
Square Footage
932 sqft
Bathrooms Total
2
Bedrooms Total
2
Amenities
Clubhouse Golf Nearby, Shopping
Exterior Finish
Stucco
Fireplace Present
No
Basement Type
Crawl space
Basement Features
Building Heating Type
Forced air
Heating Fuel
Building Cooling Type
Central air conditioning

Utilities

Water
Municipal water
Utility Sewer
Municipal sewage system

Room Layout

4pc Bathroom
Main level
Measurements not available
Bedroom
Main level
11'4'' x 10'2''
Den
Main level
7'10'' x 8'5''
2pc Ensuite bath
Main level
Measurements not available
Primary Bedroom
Main level
11'6'' x 11'7''
Kitchen
Main level
11'7'' x 7'2''
Dining room
Main level
7'4'' x 9'3''
Living room
Main level
11'6'' x 14'8''

Location

Learn more about this property
Listing provided by:
Real Broker B.C. Ltd
MLS® number:
10372934
Agent:
Jeffrey Sefton
*Indicates required field
Name is required
Email is required
Please enter a valid phone number (e.g., 416-111-1111).