13 Wood Duck Way, Osoyoos, British Columbia V0H 1V5

Listed for:
$689,000
3 beds
3 baths
Listed 95 days ago
House for rent: 13 Wood Duck Way, Osoyoos, British Columbia V0H 1V5

View all 40 photos

About

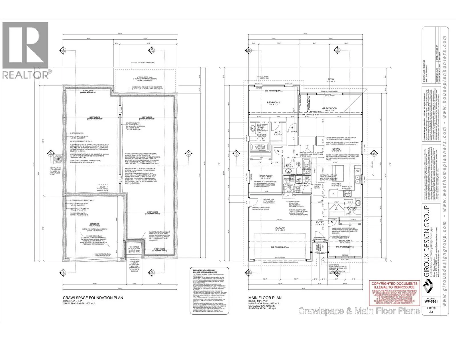
Impressive 3-bedroom rancher under construction in the desirable Meadowlark 2 Subdivision, offering mountain views and a central Osoyoos location. This thoughtfully designed single-level home features a double car garage and is located close to the golf course, high school, and walking and biking paths just one block away. Enjoy the freedom of no strata fees while being only 3 minutes to downtown Osoyoos, with shopping, dining, and amenities close at hand. An excellent opportunity to own a brand-new home in a quiet, well-planned neighbourhood. (id:27476)

Property Highlights

MLS® Number
10375554
Type
Single Family
Ownership Type
Freehold
Land Size
0.08 ac|under 1 acre
Parking Space Total
2

Building

Building Type
House
Storeys
1.00
Square Footage
1487 sqft
Bathrooms Total
3
Bedrooms Total
3
Fireplace Present
No
Basement Type
Crawl space
Basement Features
Building Heating Type
Forced air, See remarks
Heating Fuel
Building Cooling Type
Central air conditioning

Utilities

Water
Municipal water
Utility Sewer
Municipal sewage system

Room Layout

Mud room
Main level
8'10'' x 6'
2pc Bathroom
Main level
5' x 5'8''
4pc Bathroom
Main level
8'10'' x 5'
Bedroom
Main level
10' x 10'
Bedroom
Main level
10' x 11'
Other
Main level
5' x 7'
4pc Ensuite bath
Main level
6' x 9'
Primary Bedroom
Main level
15' x 11'
Great room
Main level
19'8'' x 12'4''
Dining room
Main level
12'6'' x 10'
Kitchen
Main level
15'6'' x 10'
Foyer
Main level
10' x 5'1''

Location

Learn more about this property
Listing provided by:
RE/MAX Realty Solutions
MLS® number:
10375554
Agent:
Eileen Mcginn
*Indicates required field
Name is required
Email is required
Please enter a valid phone number (e.g., 416-111-1111).

Street Spotlight - For sale