4000 Trails Place Unit# 163, Peachland, British Columbia V0H 1X5

Listed for:
$774,900
3 beds
3 baths
Listed 79 days ago
Row / Townhouse for rent: 4000 Trails Place Unit# 163, Peachland, British Columbia V0H 1X5

View all 62 photos

About

Welcome to The Trails! Backing onto Pincushion Mountain and steps from Hardy Falls and endless scenic trails, this location couples nature with convenience. An executive 9-hole golf course is approved next door, while Beach Avenue’s shops, restaurants, parks, marinas, wineries, and microbreweries are just minutes down the hill. This exceptional end unit presents like a show home. The craftsman exterior with Hardie board siding, rich wood and slate accents, and a stamped concrete entry sets the tone for the quality throughout. Inside, soaring ceilings and expansive windows flood the home with natural light, creating an open, airy atmosphere. The main living level is designed for entertaining, featuring a stunning white kitchen with upgraded cabinetry, quartz countertops, custom backsplash, premium appliances, and refined hardware. The living room is anchored by a cozy natural gas fireplace with a solid wood mantle and elegant shiplap detail. Two inviting covered decks on this level offer private views from both sides of the home. Upstairs offers 3 generous bedrooms and 2 full bathrooms, including a serene primary retreat with vaulted ceilings and transom windows. On the entry level, a large rec room with a 2nd fireplace opens directly to the patio — ideal for guests or seamless indoor-outdoor living. Phantom screens throughout, an oversized tandem garage with abundant storage for all your lifestyle gear, and the peace of mind of a FireSmart community. (id:27476)

Property Highlights

MLS® Number
10376965
Type
Single Family
Community Name
The Trails
Maintenance Fee
343.36
Ownership Type
Strata
Land Size
under 1 acre
Parking Space Total
2

Building

Building Type
Row / Townhouse
Storeys
3.00
Square Footage
1565 sqft
Bathrooms Total
3
Bedrooms Total
3
Fireplace Present
No
Basement Type
Basement Features
Building Heating Type
Forced air
Heating Fuel
Building Cooling Type
Central air conditioning

Utilities

Water
Municipal water
Utility Sewer
Municipal sewage system

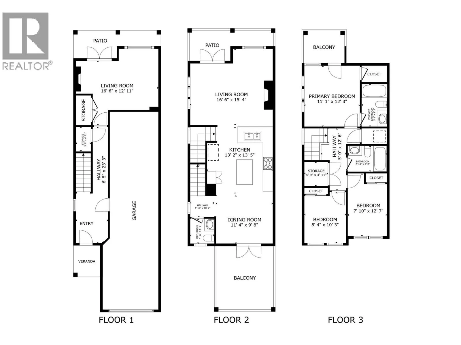
Room Layout

2pc Bathroom
Second level
4'11'' x 4'11''
Dining room
Second level
11'4'' x 10'3''
Kitchen
Second level
13'2'' x 13'2''
Living room
Second level
16'8'' x 16'0''
Bedroom
Third level
8'1'' x 12'5''
Bedroom
Third level
8'2'' x 10'4''
4pc Bathroom
Third level
8'1'' x 4'11''
4pc Ensuite bath
Third level
5'0'' x 8'2''
Primary Bedroom
Third level
11'0'' x 12'3''
Other
Main level
10'6'' x 36'2''
Foyer
Main level
6'9'' x 23'6''
Recreation room
Main level
16'7'' x 12'11''

Location

Learn more about this property
Listing provided by:
Sotheby's International Realty Canada
MLS® number:
10376965
Agent:
Maureen Yakimchuk
*Indicates required field
Name is required
Email is required
Please enter a valid phone number (e.g., 416-111-1111).