6034 Garraway Place, Peachland, British Columbia V0H 1X4

Listed for:
$650,000
3 beds
2 baths
Listed 1 day ago
House for rent: 6034 Garraway Place, Peachland, British Columbia V0H 1X4

View all 55 photos

About

OPEN HOUSE: SUNDAY MAY 17 from 2:00 - 4:00 PM Attention first-time home buyers, downsizers, or investors - welcome to 6034 Garraway Place in beautiful Peachland! This no-stair rancher in a quiet cul-de-sac, close to parks has great RV parking on a flat corner lot! Large windows fill the home with natural light. Open concept living with gas fireplace, a dining area, and the kitchen facing the backyard views. Down the hall you'll find 3 comfortable bedrooms, two baths and a convenient laundry room with access from the garage. You'll find the new-style light/fan combo in the dining room and bedrooms very cool! The hot water tank was replaced 3 years ago, and the furnace is 12 years old. Fully fenced backyard (bring the pets) with a lovely semi-enclosed patio, nice rock wall, and a couple of fruit trees as well as two sheds that will stay with the property. This home is in a great neighbourhood, steps to Turner Park and Sanderson off-leash dog park. Well-maintained and ready for the next owners who want to call this place home - just minutes from the beautiful lakefront boardwalk that Peachland is famous for! (id:27476)

Property Highlights

MLS® Number
10380391
Type
Single Family
Ownership Type
Freehold
Land Size
0.21 ac|under 1 acre
Parking Space Total
2

Building

Building Type
House
Storeys
1.00
Square Footage
1283 sqft
Bathrooms Total
2
Bedrooms Total
3
Fireplace Present
Yes
Basement Type
Basement Features
Building Heating Type
Forced air
Heating Fuel
Building Cooling Type

Utilities

Water
Municipal water
Utility Sewer
Septic tank

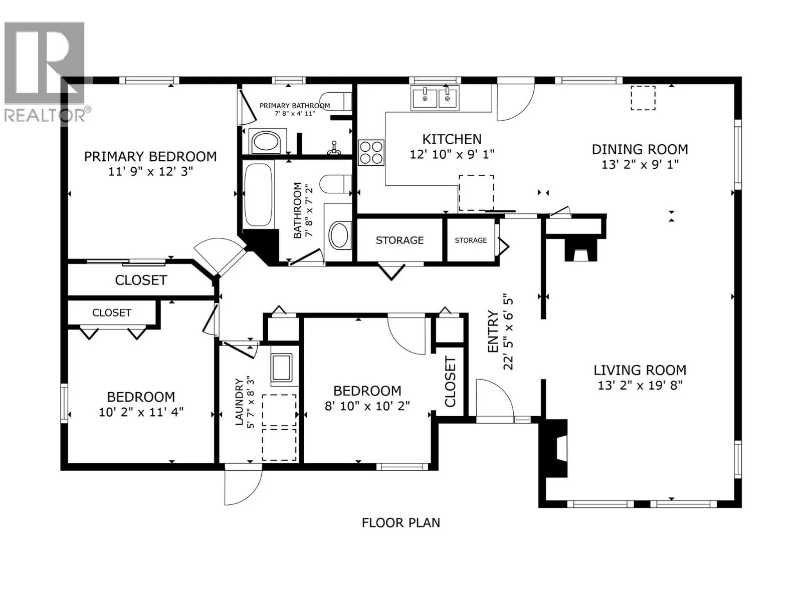
Room Layout

Full bathroom
Main level
7'8'' x 7'2''
Full ensuite bathroom
Main level
7'8'' x 4'11''
Bedroom
Main level
9'8'' x 10'
Bedroom
Main level
8'7'' x 10'0''
Primary Bedroom
Main level
11'11'' x 12'3''
Kitchen
Main level
26'4'' x 8'9''
Living room
Main level
18'7'' x 13'0''

Location

Learn more about this property
Listing provided by:
Century 21 Assurance Realty Ltd
MLS® number:
10380391
Agent:
Jennifer Martens
*Indicates required field
Name is required
Email is required
Please enter a valid phone number (e.g., 416-111-1111).