11120 Sunshine Coast Highway, Pender Harbour, British Columbia V7Z 1B9

Listed for:
$1,098,000
2 beds
2 baths
Listed 30 days ago
House for rent: 11120 Sunshine Coast Highway, Pender Harbour, British Columbia V7Z 1B9

View all 40 photos

Learn more about this property
Listing provided by:
RE/MAX City Realty
MLS® number:
R3073164
Agent:
Kirsty Tosczak
*Indicates required field
Name is required
Email is required
Please enter a valid phone number (e.g., 416-111-1111).

About

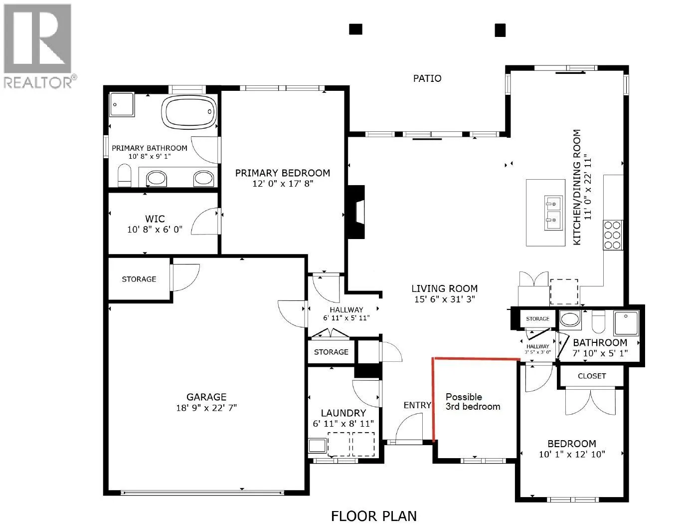
Beautiful new rancher on 2.4 acres with bright open layout, 9' ceilings, A/C, gas stove/fireplace, pantry, covered deck and sunlit fenced yard plus spacious open land. Large primary suite with spa-like ensuite, walk-in closet and sliding door to private yard. Area to add a 3rd bedroom. Lots of space for an outbuilding or RV parking. Peaceful & private setting. (id:27476)

Property Highlights

MLS® Number
R3073164
Type
Single Family
Maintenance Fee
0.00
Ownership Type
Strata
Land Size
2.4 ac
Parking Space Total
5

Building

Building Type
House
Storeys
1.00
Square Footage
1428 sqft
Bathrooms Total
2
Bedrooms Total
2
Fireplace Present
No
Basement Type
Basement Features
Building Heating Type
Forced air, Heat Pump
Heating Fuel
Propane
Building Cooling Type
Air Conditioned

Location