1438 Government Street, Penticton, British Columbia V2A 4W1

Listed for:
$399,000
0 beds
0 baths
Listed 103 days ago
Other for rent: 1438 Government Street, Penticton, British Columbia V2A 4W1

View all 3 photos

Learn more about this property
Listing provided by:
RE/MAX Penticton Realty
MLS® number:
10356383
Agent:
Amar Kahlon
*Indicates required field
Name is required
Email is required
Please enter a valid phone number (e.g., 416-111-1111).

About

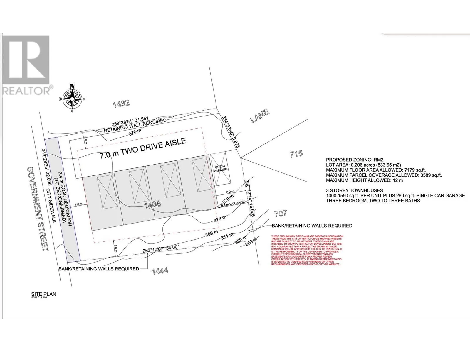
A fantastic development opportunity for developers or looking for a residential lot middle of town or close to the Hospital. This lot has a great potential for a 4-unit development, with a convenient lane access, is just steps away from the hospital and other amenities. The older house has already been removed. Plans are available for review for the 4 unit development. Contact LR for more details. (id:27476)

Property Highlights

MLS® Number
10356383
Type
Vacant Land
Ownership Type
Freehold
Land Size
0.21 ac|under 1 acre

Building

Building Type
Other
Amenities
Schools, Shopping
Fireplace Present
No
Basement Type
Basement Features
Building Heating Type
Heating Fuel
Building Cooling Type

Utilities

Water
Municipal water
Utility Sewer
Municipal sewage system

Location