19610 117a Avenue, Pitt Meadows, British Columbia V3Y 1R8

Listed for:
$1,398,000
3 beds
3 baths
Listed 18 days ago
House for rent: 19610 117a Avenue, Pitt Meadows, British Columbia V3Y 1R8

View all 40 photos

About

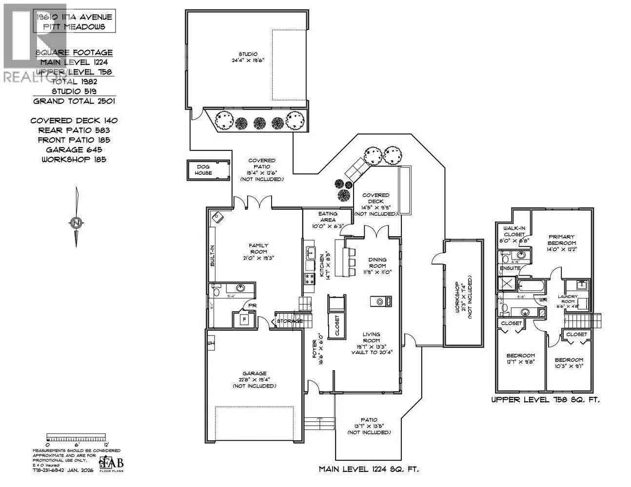
Located on a quiet cul-de-sac in the South Meadows area of Pitt Meadows, this updated family home offers a balance of space, privacy, and convenience. The neighborhood is primarily residential, with low traffic and a stable community feel, and is near schools, parks, shopping, restaurants, and recreation. The home sits on a level, fully fenced lot with mature landscaping and strong curb appeal. Interior updates provide a functional living space across multiple levels, including generous living and family areas and three bedrooms upstairs. A detached garage/workshop and additional storage enhance usability. Easy access to major routes and local amenities makes this property well suited for families or buyers seeking long-term value. Open House Sun. Feb. 15. 2 to 4. Tks Luke (id:27476)

Property Highlights

MLS® Number
R3084320
Type
Single Family
Ownership Type
Freehold
Land Size
7920 sqft
Parking Space Total
4

Building

Building Type
House
Square Footage
2455 sqft
Bathrooms Total
3
Bedrooms Total
3
Amenities
Recreation, Shopping
Fireplace Present
Yes
Basement Type
Crawl space (Unknown)
Basement Features
Unknown
Building Heating Type
Forced air
Heating Fuel
Natural gas, Wood
Building Cooling Type

Location

Learn more about this property
Listing provided by:
RE/MAX LIFESTYLES REALTY
MLS® number:
R3084320
Agent:
R.p. Luke
*Indicates required field
Name is required
Email is required
Please enter a valid phone number (e.g., 416-111-1111).