7800 Pacific Rim Hwy, Port Alberni, British Columbia V9Y 8Y7

Listed for:
$1,299,000
2 beds
1 baths
Listed 14 days ago
House for rent: 7800 Pacific Rim Hwy, Port Alberni, British Columbia V9Y 8Y7

View all 66 photos

Learn more about this property
Listing provided by:
RE/MAX Mid-Island Realty
MLS® number:
1008179
Agent:
Dave Ralla
*Indicates required field
Name is required
Email is required
Please enter a valid phone number (e.g., 416-111-1111).

About

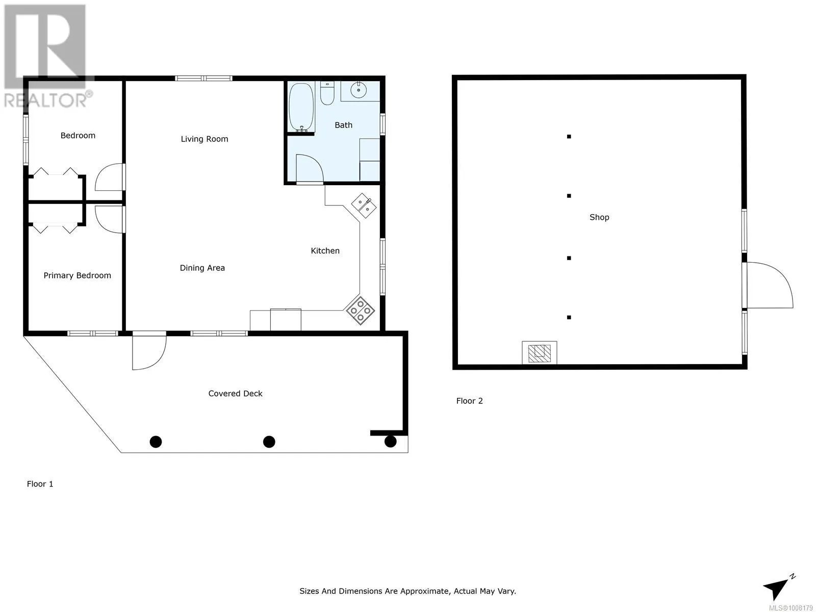
Nestled high on a peaceful mountainside, this charming two-bedroom, one-bath rancher offers the perfect blend of rustic simplicity and natural beauty. Set on 19.27 private acres, this property features expansive views, mature trees, and room to roam—ideal for those seeking solitude and homesteading potential. Entering the front door, you will notice the open-concept living area, boasting a woodstove for those cold winter days, a custom kitchen with live-edge cabinets and countertops, new appliances, and access to the covered patio just steps away —a perfect place to enjoy your morning coffee. The rest of the interior offers a spacious primary bedroom, 2nd bedroom, 4-piece bathroom, and laundry room. Outside, you will find a foundation already in place for a future home offering a covered shop area for your toys, and covered RV parking for a 30 ft trailer. If you're looking for a peaceful, private location, surrounded by trees and mountain views, this may be the home for you!! (id:27476)

Property Highlights

MLS® Number
1008179
Type
Single Family
Ownership Type
Freehold
Land Size
19.27 ac
Parking Space Total
6

Building

Building Type
House
Square Footage
1749 sqft
Bathrooms Total
1
Bedrooms Total
2
Fireplace Present
Yes
Basement Type
Basement Features
Building Heating Type
Baseboard heaters
Heating Fuel
Electric, Wood
Building Cooling Type
None

Location