1067 Prairie Avenue, Port Coquitlam, British Columbia V3B 1S5

Listed for:
$1,399,000
0 beds
0 baths
Listed 87 days ago
1067 Prairie Avenue, Port Coquitlam, British Columbia V3B 1S5

View all 6 photos

About

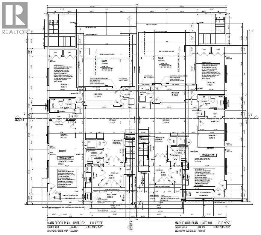
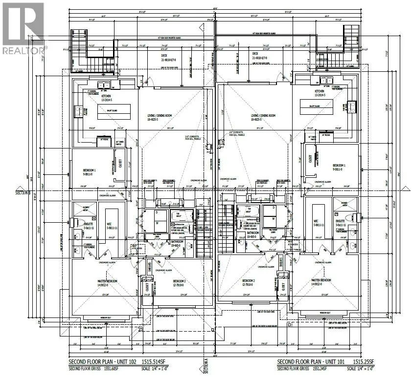
Build Without Delay - Development permit Approved and plans for a 4plex (Duplexes with suites) are awaiting your HPO number. This 8,625 sqft lot with 70 ft frontage is cleared and ready to build. Major site upgrades are already complete, including a new front curb, sidewalk, and fully paved rear lane. Located across from the park, steps to elementary and a few more steps to other levels of school, shopping, transit, parks, and the PoCo trail, this site is the perfect location for young families. A rare chance to step into a premium redevelopment project without delay. (id:27476)

Property Highlights

MLS® Number
R3061667
Type
Vacant Land
Ownership Type
Freehold
Land Size
8625 sqft

Building

Amenities
Recreation
Fireplace Present
No
Basement Type
Basement Features
Building Heating Type
Heating Fuel
Building Cooling Type

Location

Learn more about this property
Listing provided by:
RE/MAX Sabre Realty Group
MLS® number:
R3061667
Agent:
Ryan Froese
*Indicates required field
Name is required
Email is required
Please enter a valid phone number (e.g., 416-111-1111).