24 50 Seaview Drive, Port Moody, British Columbia V3H 0N2

Listed for:
$1,248,000
3 beds
3 baths
Listed 13 days ago
Row / Townhouse for rent: 24 50 Seaview Drive, Port Moody, British Columbia V3H 0N2

View all 25 photos

Learn more about this property
Listing provided by:
RE/MAX Crest Realty
MLS® number:
R3004494
Agent:
Charles Chen
*Indicates required field
Name is required
Email is required
Please enter a valid phone number (e.g., 416-111-1111).

About

Welcome to STONE RIDGE! Proudly built by Allaire Living. Nestled on quiet inner street but close to everything you need for daily life.This energy efficient home features tankless hot water heater, A/C, custom-designed kitchen cabinetry, S/S appliances, quartz countertops, backsplash and higher ceiling. NuHeat heated floors in the ensuite for your comfort. Spacious master bedroom fits a king-size bed. Upstairs upgraded laminate floor thru all 3 bedrooms. Tandem garage with bonus TWO EV charging. South facing spacious patio with the gas hookup- perfect for your summer BBQ! Close to skytrain station, future YMCA,Rocky Point Park and Safeway. Schools, Cafes, restaurants, breweries, community and shops are steps away. Port Moody Secondary with IB program. (id:27476)

Property Highlights

MLS® Number
R3004494
Type
Single Family
Maintenance Fee
282.19
Ownership Type
Strata
Parking Space Total
2

Building

Building Type
Row / Townhouse
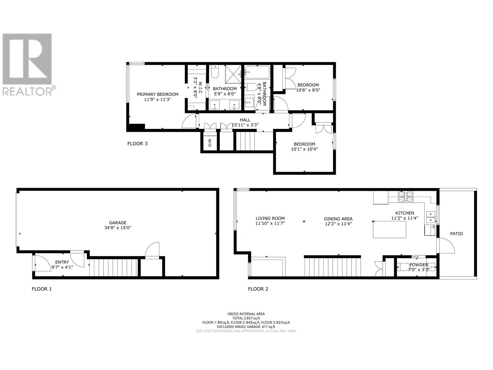
Square Footage
1357 sqft
Bathrooms Total
3
Bedrooms Total
3
Amenities
Playground, Recreation, Shopping
Fireplace Present
No
Basement Type
Basement Features
Building Heating Type
Forced air, Heat Pump
Heating Fuel
Natural gas
Building Cooling Type
Air Conditioned

Location