2716 Edgewater Crescent, Prince George, British Columbia V2K 0B9

Listed for:
$679,900
1 beds
0 baths
Listed 6 days ago
Duplex for rent: 2716 Edgewater Crescent, Prince George, British Columbia V2K 0B9

View all 1 photos

About

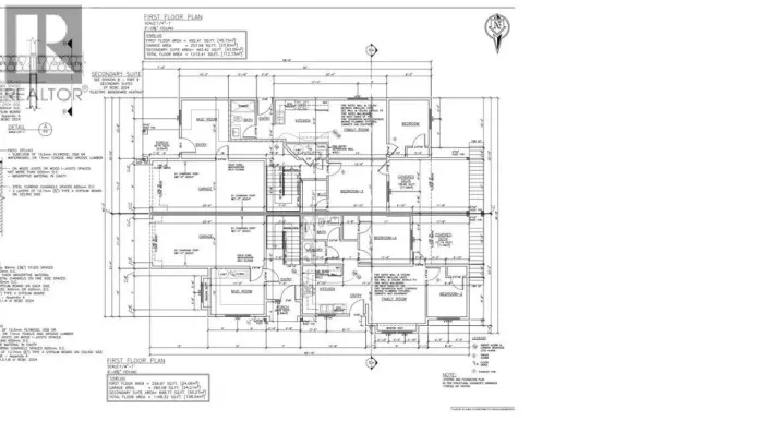
Located in The Banks subdivision, this brand new half duplex showcases a bright, open-concept layout with a stylish West Coast contemporary design. The main living area is thoughtfully designed for both everyday living and entertaining, featuring abundant natural light and modern finishes throughout. The home includes a 1 bedroom suite, offering flexibility for guests or additional income. Ideally situated within walking distance to the river, schools, and nearby recreation. Finally, the backyard is fully fenced and features a lovely back deck. Truly a rare find! (id:27476)

Property Highlights

MLS® Number
R3074474
Type
Single Family
Ownership Type
Freehold
Land Size
3657 sqft

Building

Building Type
Duplex
Storeys
1.00
Square Footage
2161 sqft
Bedrooms Total
1
Exterior Finish
Composite Siding
Fireplace Present
No
Basement Type
N/A (Finished)
Basement Features
Building Heating Type
Forced air
Heating Fuel
Natural gas
Building Cooling Type

Utilities

Water
Municipal water

Room Layout

Location

Learn more about this property
Listing provided by:
Royal LePage Aspire Realty
MLS® number:
R3074474
Agent:
Darcy Porsnuk
*Indicates required field
Name is required
Email is required
Please enter a valid phone number (e.g., 416-111-1111).

Street Spotlight - For sale