1689 Birch Street, Prince George, British Columbia V2L 1B3

Listed for:
$698,000
3 beds
3 baths
Listed 29 days ago
House for rent: 1689 Birch Street, Prince George, British Columbia V2L 1B3

View all 40 photos

About

Stunning character home with breathtaking park & river views. This 2-story home blends mid-century charm with modern utility. The upper floor features 3 bedrms, including a primary with a heated-tile ensuite, plus a flex room with laundry & access to a massive rooftop deck. The main level offers an updated island kitchen, breakfast room & spacious living/dining areas with custom shutters. A standout feature is the ground-level office with high ceilings & gas fireplace; a dedicated exterior door provides direct access for clients, making it ideal for a home-based business without intruding on the living space. The property boasts a massive over height double garage (built 1993, new roof 2025), ample parking on both sides of the home. Extras: Central A/C, 12-camera security & irrigation. (id:27476)

Property Highlights

MLS® Number
R3095314
Type
Single Family
Ownership Type
Freehold
Land Size
8274 sqft

Building

Building Type
House
Storeys
3.00
Square Footage
2206 sqft
Bathrooms Total
3
Bedrooms Total
3
Exterior Finish
Wood
Fireplace Present
Yes
Basement Type
Full (Partially finished)
Basement Features
Building Heating Type
Forced air
Heating Fuel
Natural gas
Building Cooling Type

Utilities

Water
Municipal water

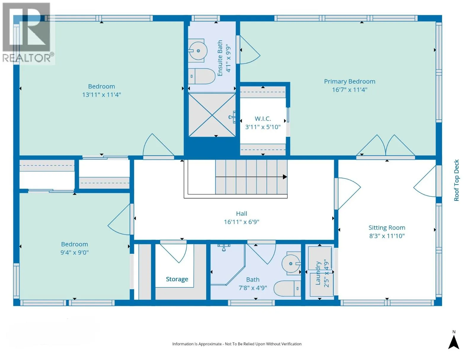
Room Layout

Primary Bedroom
Above
16 ft ,7 in x 11 ft ,4 in
Flex Space
Above
8 ft ,3 in x 11 ft ,1 in
Laundry room
Above
2 ft x 4 ft ,9 in
Bedroom 2
Above
9 ft ,4 in x 9 ft
Bedroom 3
Above
13 ft ,1 in x 11 ft ,4 in
Other
Above
3 ft ,1 in x 5 ft ,1 in
Den
Basement
12 ft ,3 in x 11 ft ,1 in
Other
Basement
22 ft ,8 in x 11 ft ,1 in
Other
Basement
38 ft ,6 in x 11 ft ,4 in
Foyer
Main level
8 ft ,8 in x 8 ft ,7 in
Living room
Main level
13 ft ,4 in x 23 ft ,6 in
Dining room
Main level
9 ft x 11 ft ,3 in
Kitchen
Main level
12 ft ,4 in x 16 ft ,8 in
Eating area
Main level
8 ft x 8 ft ,8 in
Office
Main level
14 ft ,7 in x 21 ft ,4 in

Location

Learn more about this property
Listing provided by:
Royal LePage Aspire Realty
MLS® number:
R3095314
Agent:
Dean Birks
*Indicates required field
Name is required
Email is required
Please enter a valid phone number (e.g., 416-111-1111).