446 Corina Avenue, Princeton, British Columbia V0X 1W0

Listed for:
$549,000
4 beds
3 baths
Listed 81 days ago
House for rent: 446 Corina Avenue, Princeton, British Columbia V0X 1W0

View all 44 photos

About

Spacious 2 level home with walkout basement overlooking the Tulameen River. Situated on a spacious lot with ample room for RV parking and additional vehicles, this property offers both a family friendly home with outdoor water lifestyle appeal. Numerous updates have been completed over the years, including windows, gas furnace, appliances, flooring, kitchen, and bathrooms, providing peace of mind. Featuring a 3 bedroom layout upstairs, with the primary bedroom offering modern amenities including a walk-in closet and 3-piece ensuite. Step outside to the large rear sun deck and enjoy beautiful river views and sounds in your own backyard. The full walk-out basement offers plenty of additional space and potential for the growing family. Conveniently located near elementary school. An amazing home that's perfect for families. (id:27476)

Property Highlights

MLS® Number
10376508
Type
Single Family
Ownership Type
Freehold
Land Size
0.19 ac|under 1 acre

Building

Building Type
House
Storeys
2.00
Square Footage
2144 sqft
Bathrooms Total
3
Bedrooms Total
4
Amenities
Schools
Exterior Finish
Wood siding
Fireplace Present
Yes
Basement Type
Full
Basement Features
Building Heating Type
Forced air, See remarks
Heating Fuel
Building Cooling Type
Central air conditioning

Utilities

Water
Municipal water
Utility Sewer
Municipal sewage system

Room Layout

Bedroom
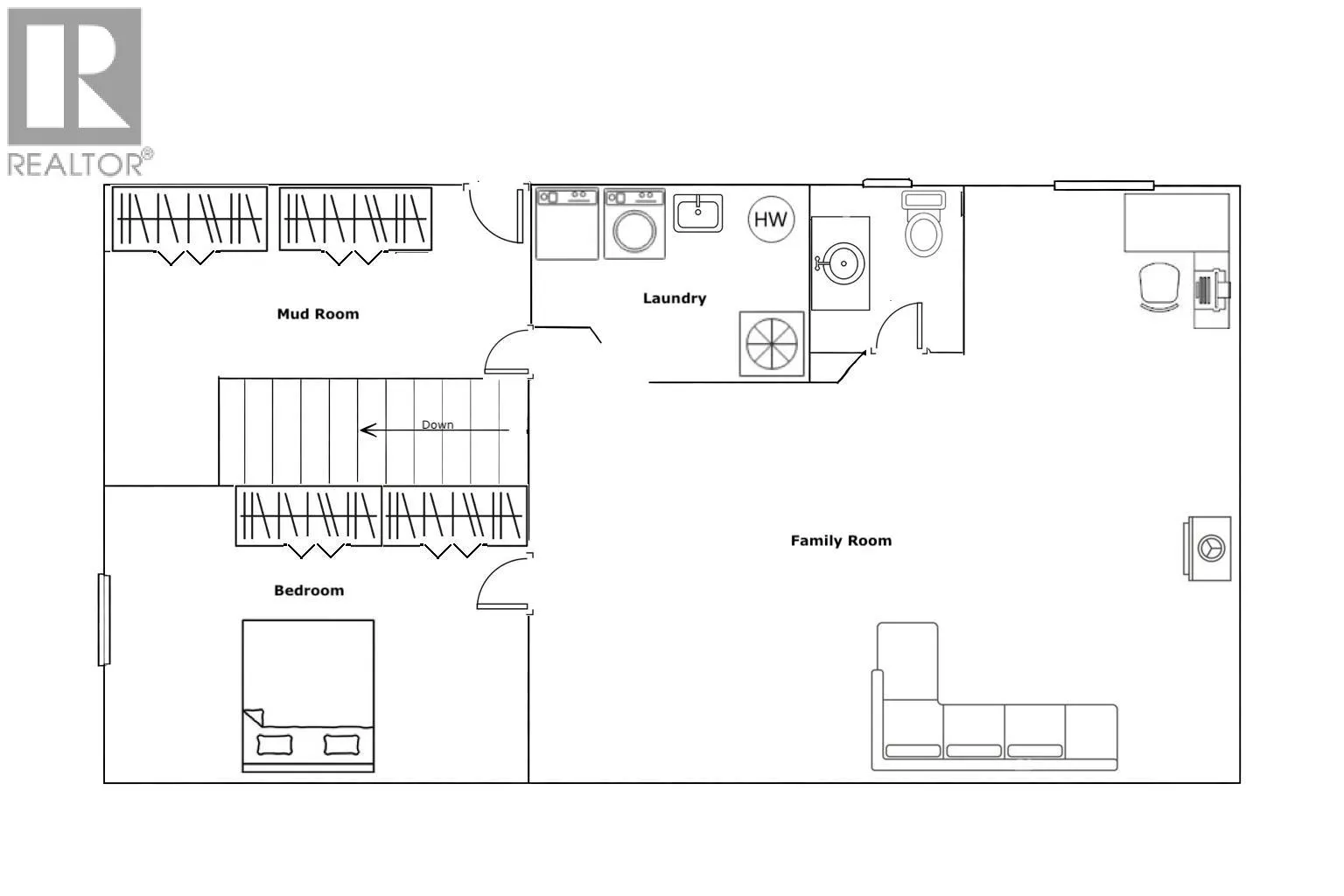
Basement
12' x 10'
Family room
Basement
25' x 16'
2pc Bathroom
Basement
Measurements not available
3pc Ensuite bath
Main level
Measurements not available
4pc Bathroom
Main level
Measurements not available
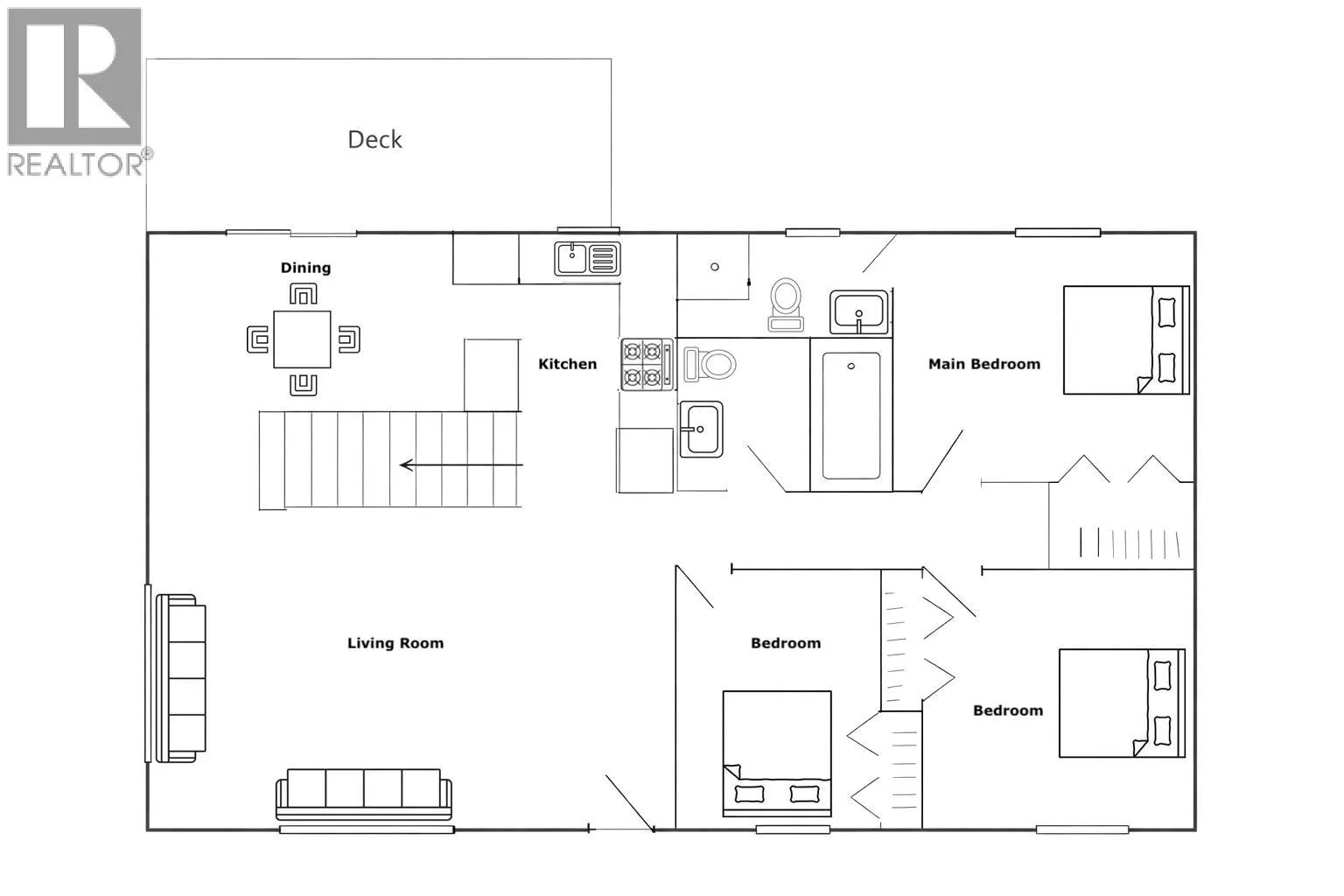
Dining room
Main level
10' x 10'
Bedroom
Main level
10' x 10'
Bedroom
Main level
10' x 9'
Primary Bedroom
Main level
13' x 10'
Living room
Main level
16' x 14'
Kitchen
Main level
13' x 10'

Location

Learn more about this property
Listing provided by:
Century 21 Horizon West Realty
MLS® number:
10376508
Agent:
Lee Mowry
*Indicates required field
Name is required
Email is required
Please enter a valid phone number (e.g., 416-111-1111).