243 Cape Mudge Rd, Quadra Island, British Columbia V0P 1N0

Listed for:
$4,025,000
6 beds
4 baths
Listed 193 days ago
House for rent: 243 Cape Mudge Rd, Quadra Island, British Columbia V0P 1N0

View all 89 photos

About

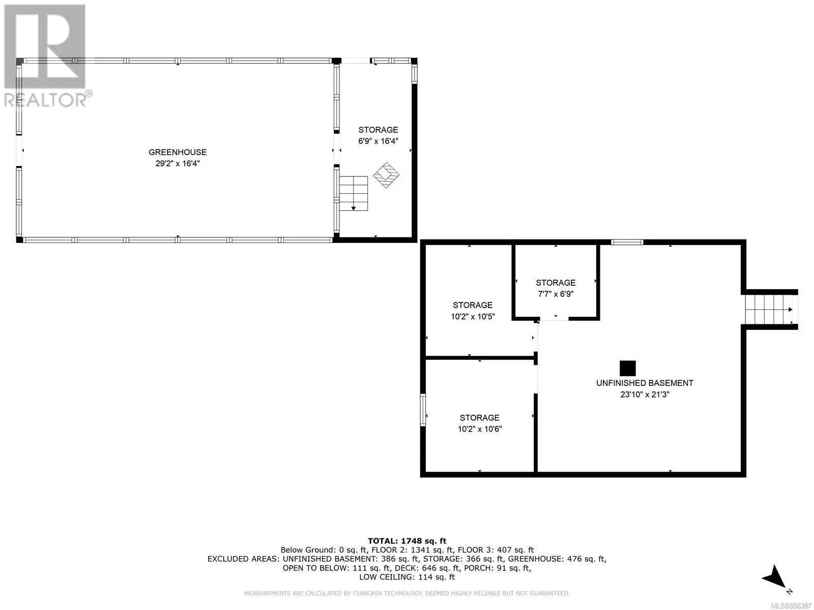
Discover Terra Nova Farms on Quadra Island, BC, spanning 106 acres with 2,400+ linear feet of high bank waterfront. This amazing property boasts of two homes and a caretaker's suite. Enjoy diverse agricultural ventures across acres of fertile land, including orchards with 800 apple trees, kiwi fruit, blueberry patches, plum, figs, and grape vines—too many to mention. Multiple greenhouses and irrigation systems ensure bountiful harvests while conserving water resources. With 76 acres in the Agriculture Land Reserve and 30 acres zoned RU-1 waterfront, Terra Nova Farms offers versatility for farming, residential, or recreational use. Experience Quadra Island's outdoor paradise, from whale watching to hiking, right at your doorstep. Four more houses plus one more secondary dwelling are allowed. Plus, a development opportunity, as a strata subdivision of three 5-acre waterfront lots, is near completion. Contact the listing agent for more details. shane@shanehedefine.com. Watch the Video:) (id:27476)

Property Highlights

MLS® Number
956387
Type
Single Family
Ownership Type
Freehold
Land Size
106.65 ac
Parking Space Total
100

Building

Building Type
House
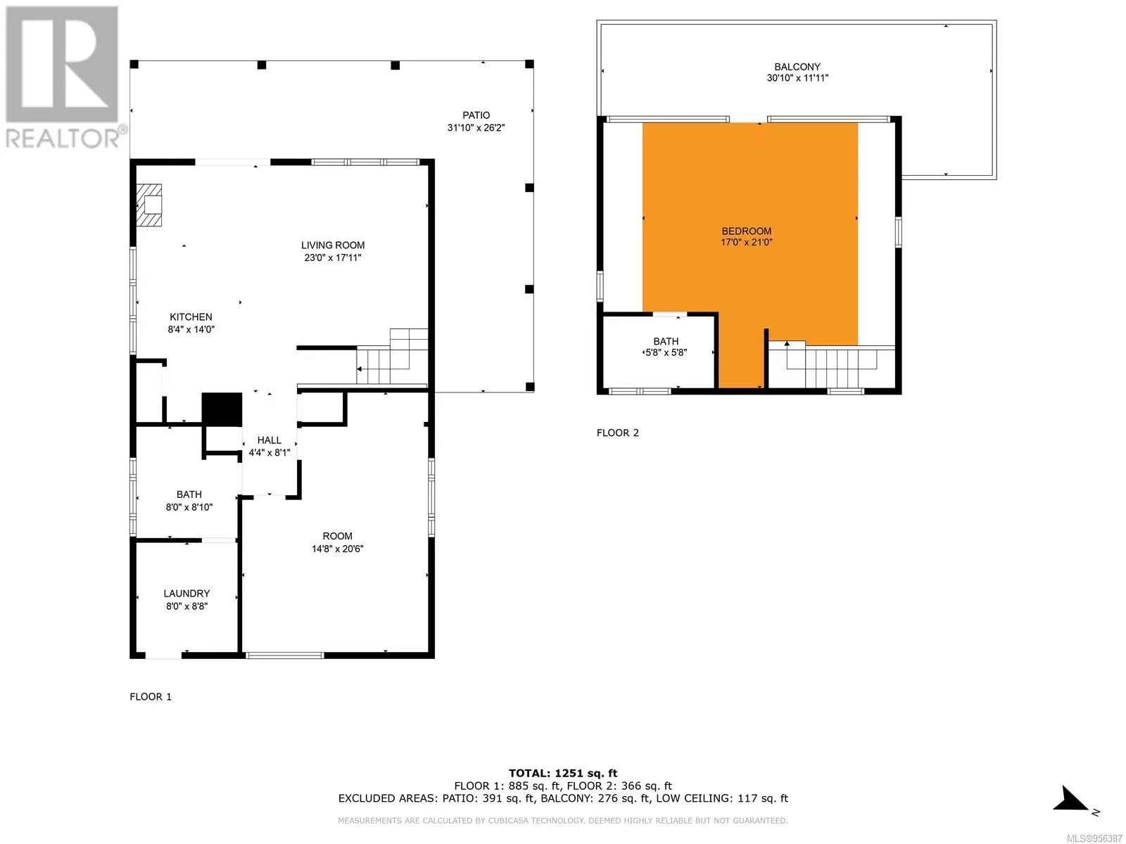
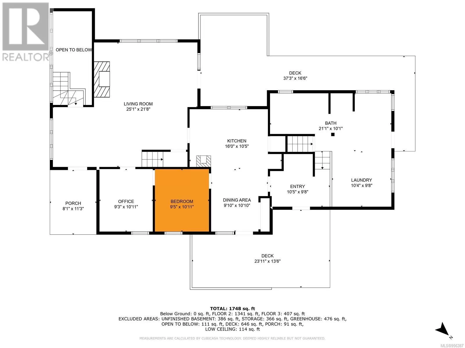
Square Footage
4784 sqft
Bathrooms Total
4
Bedrooms Total
6
Fireplace Present
Yes
Basement Type
Basement Features
Building Heating Type
Hot Water
Heating Fuel
Electric, Wood
Building Cooling Type
None

Location

Learn more about this property
Listing provided by:
RE/MAX Check Realty
MLS® number:
956387
Agent:
Shane Hedefine
*Indicates required field
Name is required
Email is required
Please enter a valid phone number (e.g., 416-111-1111).