1655 Wyatt's Way, Qualicum Beach, British Columbia V9K 2S3

Listed for:
$1,288,000
6 beds
4 baths
Listed 85 days ago
House for rent: 1655 Wyatt's Way, Qualicum Beach, British Columbia V9K 2S3

View all 94 photos

Learn more about this property
Listing provided by:
RE/MAX Anchor Realty (QU)
MLS® number:
1016127
Agent:
Candice Svrta
*Indicates required field
Name is required
Email is required
Please enter a valid phone number (e.g., 416-111-1111).

About

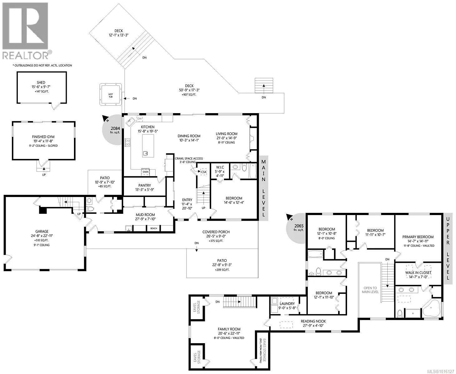
From the moment you turn onto Wyatt's Way down your driveway, you will love this home with a manicured yard and a family playground in the backyard. Its vast deck leads to your private, fresh water flowing, swimming pond (35mx25m and BC Wildlife permitted for trout). A 210 sq ft stand alone gym overlooks the pond, but could be used as a summer house, art studio etc. Inside are 5 bedrooms,4 bathrooms, a gourmet kitchen including enormous pantry. The great and family rooms are wired with surround sound. The main-floor nanny room has a walk-in closet and en-suite. Laundry is conveniently located on both floors. The master suite has 4 sky lights, a large walk-in closet and 5 piece en-suite (the tub has hot and cold jet therapy). There is a one bedroom carriage house currently rented. The larger of the two garages has 9' doors, 10' foot ceiling and even a half bathroom. For additional income there is an RV parking with full hook-up. This property is bare land strata, strata fees include garbage, storage space and water. (id:27476)

Property Highlights

MLS® Number
1016127
Type
Single Family
Maintenance Fee
210.00
Ownership Type
Strata
Land Size
0.92 ac
Parking Space Total
6

Building

Building Type
House
Square Footage
6130 sqft
Bathrooms Total
4
Bedrooms Total
6
Fireplace Present
Yes
Basement Type
Basement Features
Building Heating Type
Heat Pump
Heating Fuel
Electric
Building Cooling Type
Air Conditioned

Location