C18 2659 Turnbull Rd, Qualicum Beach, British Columbia V9K 2R2

Listed for:
$199,000
3 beds
2 baths
Listed 6 days ago
Recreational for rent: C18 2659 Turnbull Rd, Qualicum Beach, British Columbia V9K 2R2

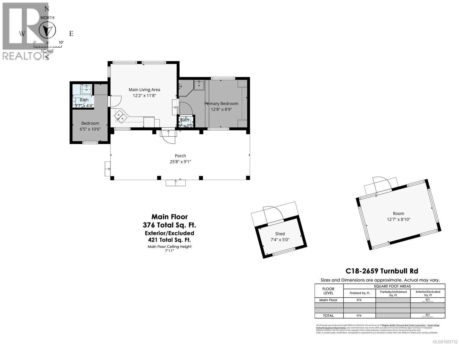
View all 50 photos

About

Tired of scrambling to book campsites every season? Imagine having your own private getaway, ready whenever you are. Welcome to Spider Lake Springs Resort—where convenience, community, and classic summer memories come together. This fully turnkey recreational RV site is thoughtfully set up and ready for immediate enjoyment. The property includes a well-maintained RV, a bunkie for extra sleeping space, a garden shed for storage, and a covered deck perfect for relaxing or entertaining. A fire pit creates the ideal setting for evenings under the stars, and the fully fenced lot makes it a great option for dog owners. A true standout feature is the exceptional privacy this site offers. Tucked away within the resort, the yard is not overlooked by neighbouring sites—allowing you to fully unwind and enjoy a peaceful, retreat-like setting that’s hard to find. Everything is in place—just bring your clothes and groceries and start enjoying right away. The resort itself offers an incredible range of amenities designed for all ages. Spend your days at the swimming lake or the dedicated dog-friendly lake, enjoy friendly competition on the tennis and pickleball courts, or take advantage of the sports fields, playground, and games room. There’s also a clubhouse, onsite laundry, and a welcoming community atmosphere that makes it easy to settle in and feel at home. Located just minutes from Spider Lake and Horne Lake, this is an ideal base for exploring the natural beauty of Vancouver Island while still enjoying the comforts of a well-established resort. Whether you’re looking for a weekend escape, a summer retreat, or a place to create lasting family memories, this is your opportunity to own your own piece of the Island lifestyle—without the hassle of booking ever again. (id:27476)

Property Highlights

MLS® Number
1025712
Type
Single Family
Maintenance Fee
156.25
Ownership Type
Other, See Remarks
Parking Space Total
2

Building

Building Type
Recreational
Square Footage
376 sqft
Bathrooms Total
2
Bedrooms Total
3
Fireplace Present
No
Basement Type
Basement Features
Building Heating Type
Forced air
Heating Fuel
Electric, Propane
Building Cooling Type
Air Conditioned

Location

Learn more about this property
Listing provided by:
Royal LePage Island Living (PK)
MLS® number:
1025712
Agent:
Meghan Walker
*Indicates required field
Name is required
Email is required
Please enter a valid phone number (e.g., 416-111-1111).

Street Spotlight - For sale