Th1 3280 Corvette Way, Richmond, British Columbia V6X 0T9

Listed for:
$1,777,900
4 beds
3 baths
Listed 137 days ago
Apartment for rent: Th1 3280 Corvette Way, Richmond, British Columbia V6X 0T9

View all 14 photos

Learn more about this property
Listing provided by:
Nu Stream Realty Inc.
MLS® number:
R2955854
Agent:
Ken Cui
*Indicates required field
Name is required
Email is required
Please enter a valid phone number (e.g., 416-111-1111).

About

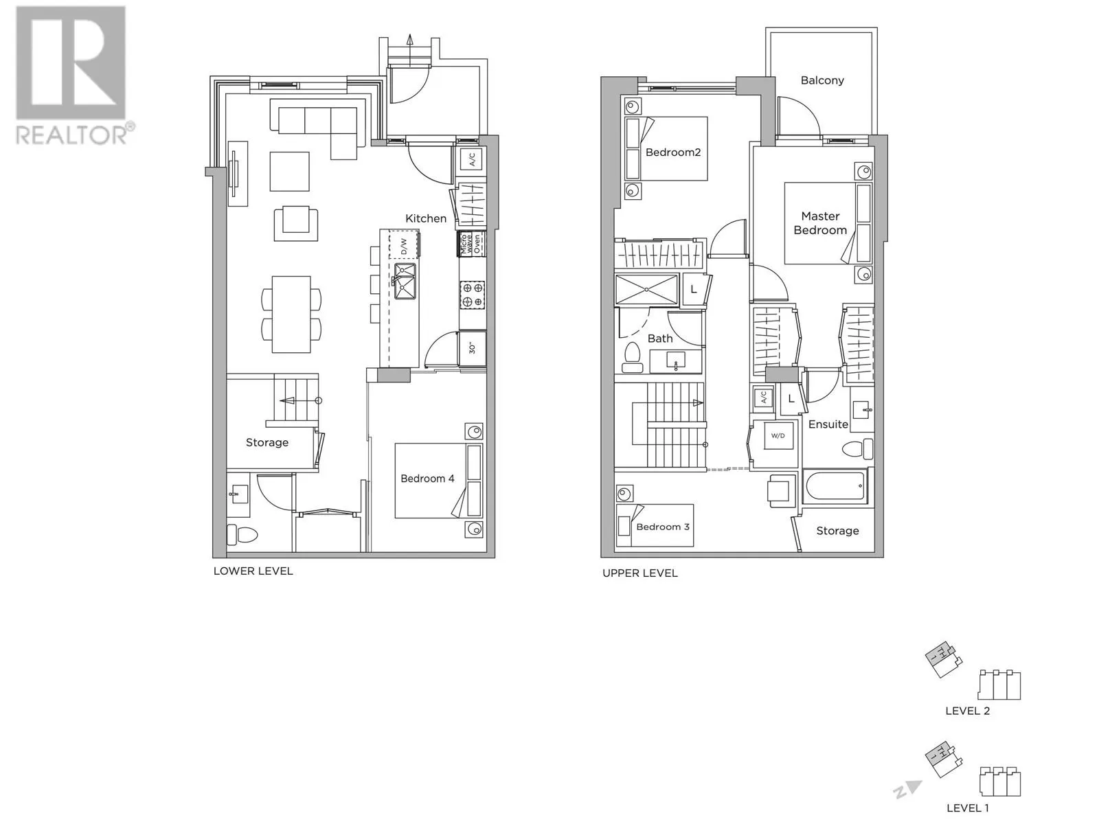
Embrace unparalleled convenience with this live-work townhouse situated in the heart of Richmond City, adjacent to the soon-to-open Capstan Skytrain station. Whether you're seeking a comfortable family home or a space to launch your own business venture, this versatile property caters to your needs. Facing the future community centre, with ample public parking within the building and street parking for visitors, convenience is at your doorstep. Book your appointment now to explore this exclusive live-work townhouse. You'll also able to be shown all the other residential units, including 2/3-bedroom apartments and penthouses, within the ViewStar Community in this ONE ROUTINE. Your ideal living and working solution awaits with just a simple click. (id:27476)

Property Highlights

MLS® Number
R2955854
Type
Single Family
Maintenance Fee
0.00
Ownership Type
Strata

Building

Building Type
Apartment
Square Footage
1481 sqft
Bathrooms Total
3
Bedrooms Total
4
Fireplace Present
No
Basement Type
Basement Features
Building Heating Type
Heat Pump
Heating Fuel
Building Cooling Type

Location

Street Spotlight - For sale