202 9366 Tomicki Avenue, Richmond, British Columbia V6X 0N9

Listed for:
$728,000
2 beds
2 baths
Listed 153 days ago
Apartment for rent: 202 9366 Tomicki Avenue, Richmond, British Columbia V6X 0N9

View all 30 photos

Learn more about this property
Listing provided by:
RE/MAX City Realty
MLS® number:
R3015876
Agent:
Kevin Mo
*Indicates required field
Name is required
Email is required
Please enter a valid phone number (e.g., 416-111-1111).

About

Experience modern living at Alexandra Court III - Carlton of Alexandra Court by Polygon. This bright 2-bed, 2-bath unit in the Alexandra Gardens neighborhood boasts a functional layout, 9ft ceilings, and abundant windows. Features include air conditioning throughout, quartz countertops, stainless steel appliances, and laminated flooring. Enjoy resort-style amenities at The Alexandra Club: outdoor pool, gym, fitness studio, guest suite, and multimedia lounge. Steps away from Walmart, shopping, restaurants, bus, and Skytrain. (id:27476)

Property Highlights

MLS® Number
R3015876
Type
Single Family
Maintenance Fee
546.78
Ownership Type
Strata
Parking Space Total
1

Building

Building Type
Apartment
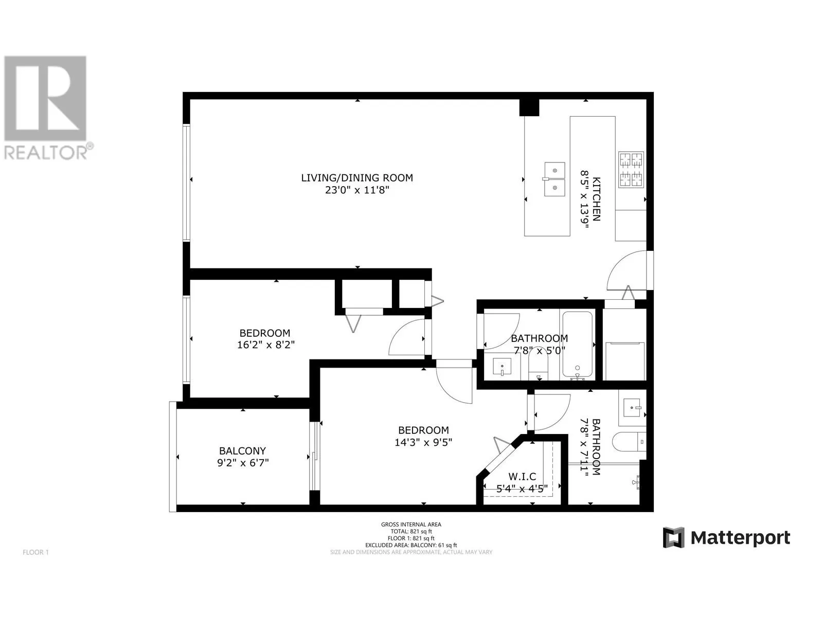
Square Footage
821 sqft
Bathrooms Total
2
Bedrooms Total
2
Amenities
Exercise Centre, Laundry - In Suite Recreation, Shopping
Fireplace Present
No
Basement Type
Basement Features
Building Heating Type
Heating Fuel
Geo Thermal
Building Cooling Type
Air Conditioned

Location

Street Spotlight - For sale