2153/2158/2258 21320 Westminster Highway, Richmond, British Columbia V6V 2X5

Listed for:
$3,399,000
0 beds
0 baths
Listed 43 days ago
2153/2158/2258 21320 Westminster Highway, Richmond, British Columbia V6V 2X5

View all 25 photos

Learn more about this property
Listing provided by:
RE/MAX Performance Realty
MLS® number:
C8071517
Agent:
Jenny Matches
*Indicates required field
Name is required
Email is required
Please enter a valid phone number (e.g., 416-111-1111).

About

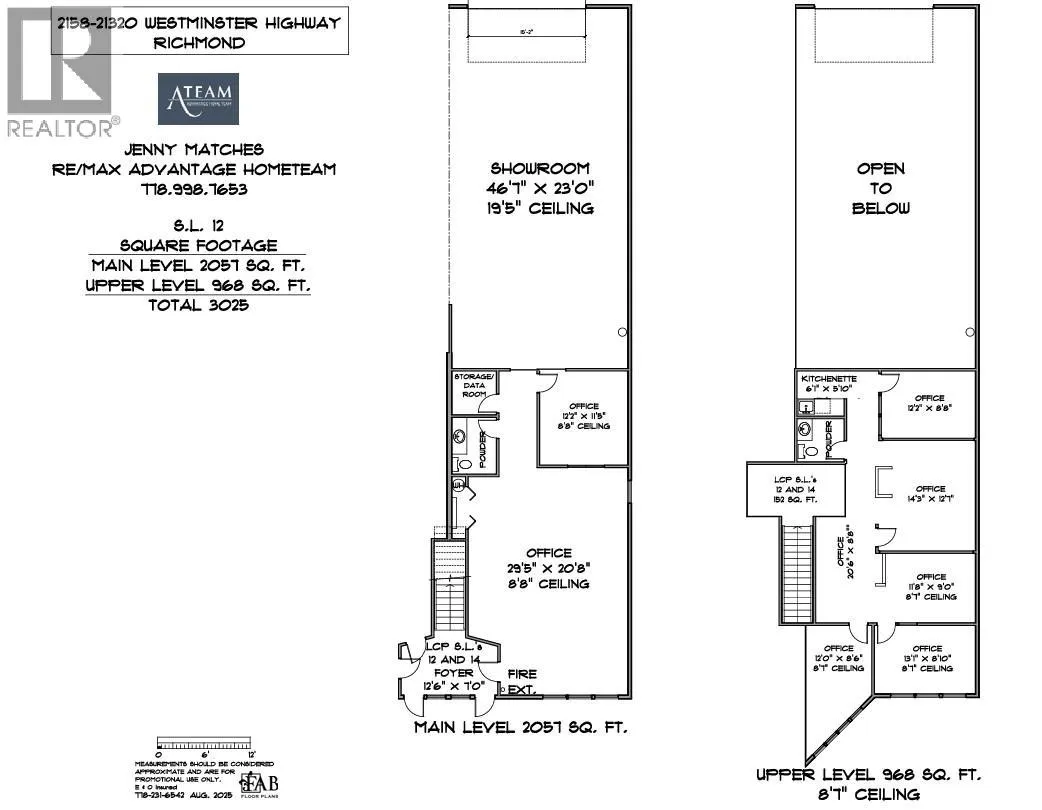
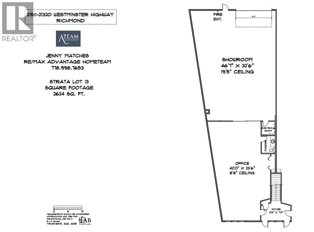
RARE OPPORTUNITY to purchase 3 adjacent strata lots totaling 6,750 SF plus 6,000 SF SECURE GATED COMPOUND. HIGHWAY FRONTAGE-Strategically located in the center of East Richmond providing excellent access to Westminster Hwy & Hwy 91 (East West Connector), the premise is within minutes of the Alex Fraser, Queensborough & Knight Street Bridges. ZI-1 zoning allowing for service oriented INDUSTRIAL, office use including: VEHICLE sales/rental, MANUFACTURING-custom indoor, industrial-general, office, recreation-indoor, health service/minor, child care. Large indoor showroom with bay door 15' X 15' & 10' X 10' door openings plus 2 large mezzanine/office areas on lower floor, 9 offices, 4 two piece washrooms plus staff lunchroom upstairs. 11 parking stalls & 12 rented spots $275 per month PLUS over 6,000 SF of parking in compound (SQUEEZE 35 CARS). 3 strata lots with 4 civic addresses. (id:27476)

Property Highlights

MLS® Number
C8071517
Type
Industrial
Maintenance Fee
2644.27

Building

Square Footage
6750 sqft
Amenities
Street Lighting
Fireplace Present
No
Basement Type
Basement Features
Building Heating Type
Heating Fuel
Building Cooling Type

Utilities

Utility Sewer
Storm sewer

Location

Street Spotlight - For sale