16 22811 Mclean Avenue, Richmond, British Columbia V6V 0B8

Listed for:
$949,000
3 beds
3 baths
Listed 40 days ago
Row / Townhouse for rent: 16 22811 Mclean Avenue, Richmond, British Columbia V6V 0B8

View all 26 photos

Learn more about this property
Listing provided by:
RE/MAX Westcoast
MLS® number:
R3057546
Agent:
Ajit Thaliwal
*Indicates required field
Name is required
Email is required
Please enter a valid phone number (e.g., 416-111-1111).

About

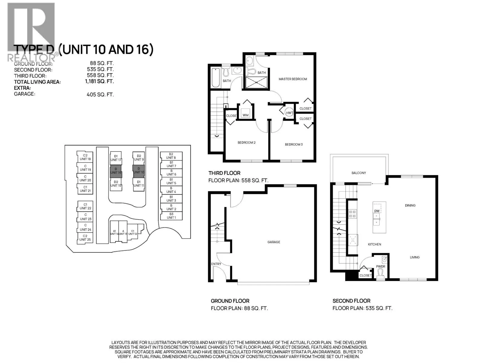
Introducing Another Award Winning Community by Infinity Living "Richstone Hamilton" nestled in the quiet rapidly growing Richmond Suburb of Hamilton. 25 Farmhouse inspired townhomes with gorgeous finishings. These 3 Bedroom townhomes boast designer kitchens, Fisher & Paykel appliance package, authentic imported european tiles, Quartz countertops, custom wood work, Air Con/Heat Pump/HRV and double tandem/side by side garages. These units are very well appointed. Walking distance to Shopping, schools, parks, childcare and transit. All Units are Ready to Occupy in 2025! OPEN HOUSE - Sun Nov 23 from 2-4 pm. The Show Home is located at Unit 4. (id:27476)

Property Highlights

MLS® Number
R3057546
Type
Single Family
Maintenance Fee
347.74
Ownership Type
Strata
Parking Space Total
2

Building

Building Type
Row / Townhouse
Square Footage
1181 sqft
Bathrooms Total
3
Bedrooms Total
3
Amenities
Playground
Fireplace Present
No
Basement Type
Basement Features
Building Heating Type
Baseboard heaters
Heating Fuel
Electric
Building Cooling Type
Air Conditioned

Location