935 5591 No. 3 Road, Richmond, British Columbia V6X 2C7

Listed for:
$1,680,000
0 beds
0 baths
Listed 7 days ago
935 5591 No. 3 Road, Richmond, British Columbia V6X 2C7

View all 13 photos

Learn more about this property
Listing provided by:
RE/MAX Crest Realty
MLS® number:
C8073482
Agent:
Sally Guo
*Indicates required field
Name is required
Email is required
Please enter a valid phone number (e.g., 416-111-1111).

About

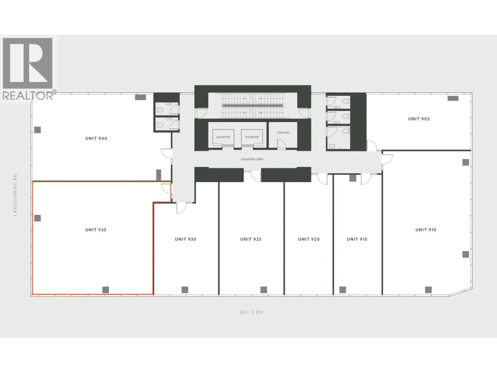
The Offices at Luxe ' Richmond's Premier AAA Office Destination Elevate your business presence in this brand-new, modern office suite located at the landmark intersection of Lansdowne Road & No. 3 Road, the heart of Richmond's vibrant new downtown core. Part of a master-planned mixed-use development, The Offices at Luxe offers unmatched convenience ' steps to Lansdowne Centre, SkyTrain, and YVR International Airport. Enjoy striking contemporary architecture, high-end finishes, and premium amenities, including visitor parking and shared meeting spaces. Perfect for professional firms, medical offices, tech startups, or established enterprises seeking a prestigious Richmond address. Units 935 / 930 / 925 ' total 2,720 sq. ft. ' available individually or together. (id:27476)

Property Highlights

MLS® Number
C8073482
Type
Office
Maintenance Fee
0.00

Building

Square Footage
1360 sqft
Fireplace Present
No
Basement Type
Basement Features
Building Heating Type
Heating Fuel
Building Cooling Type

Location

Street Spotlight - For sale