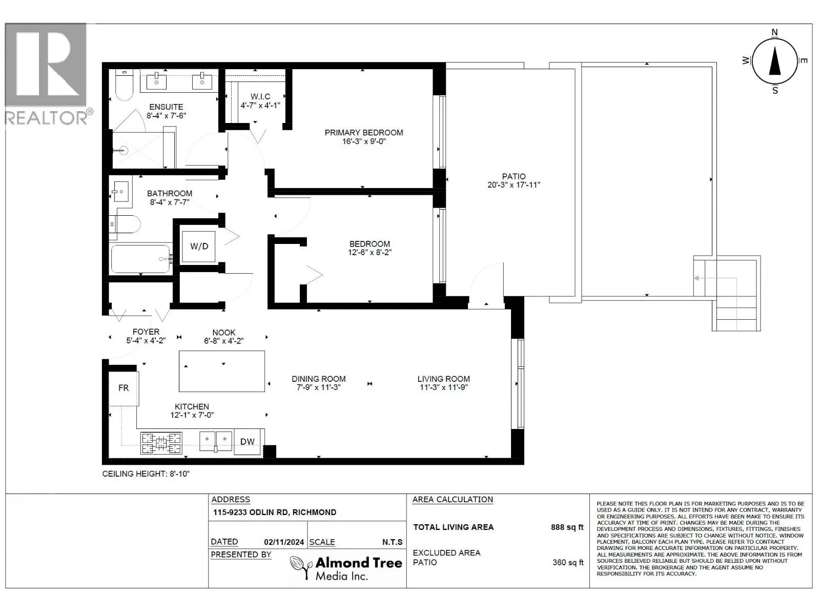
115 9233 Odlin Road, Richmond, British Columbia V6X 0V4

Listed for:
$799,999
2 beds
2 baths
Listed 30 days ago
Apartment for rent: 115 9233 Odlin Road, Richmond, British Columbia V6X 0V4

View all 27 photos

Learn more about this property
Listing provided by:
Grand Central Realty
MLS® number:
R3071120
Agent:
Hayley Yip
*Indicates required field
Name is required
Email is required
Please enter a valid phone number (e.g., 416-111-1111).

About

Fall in love with this beautifully designed ground-level home at Berkeley House by Polygon. This move-in ready unit features a giant 360 SF private patio, perfect for peaceful mornings or relaxing evenings, and offers rare direct access to both the street and the secure under-building garage-no long hallways or elevators needed. The functional layout includes 2 spacious bedrooms, a primary suite with a walk-in closet, and comes complete with 2 SIDE BY SIDE parking stalls plus a large storage locker. Centrally located in one of Richmond´s most convenient neighbourhoods, you´re just steps to Walmart, Foody World, restaurants, cafés, banks, parks, and everyday essentials. A short walk brings you to Lansdowne SkyTrain Station, major transit routes, and Lansdowne Mall. This home offers exceptional comfort, accessibility, and connection-an inviting space to create meaningful moments. All measurements are approximate. Book your showing today! (id:27476)

Property Highlights

MLS® Number
R3071120
Type
Single Family
Maintenance Fee
531.14
Ownership Type
Strata
Parking Space Total
2

Building

Building Type
Apartment
Square Footage
888 sqft
Bathrooms Total
2
Bedrooms Total
2
Amenities
Exercise Centre, Laundry - In Suite Playground, Shopping
Fireplace Present
No
Basement Type
Basement Features
Building Heating Type
Heat Pump
Heating Fuel
Building Cooling Type
Air Conditioned

Location

Street Spotlight - For sale