311 11240 Daniels Road, Richmond, British Columbia V6X 1M6

Listed for:
$437,000
1 beds
1 baths
Listed 16 days ago
Apartment for rent: 311 11240 Daniels Road, Richmond, British Columbia V6X 1M6

View all 16 photos

Learn more about this property
Listing provided by:
Sutton Group - Vancouver First Realty
MLS® number:
R3073916
Agent:
Daniel Pang
*Indicates required field
Name is required
Email is required
Please enter a valid phone number (e.g., 416-111-1111).

About

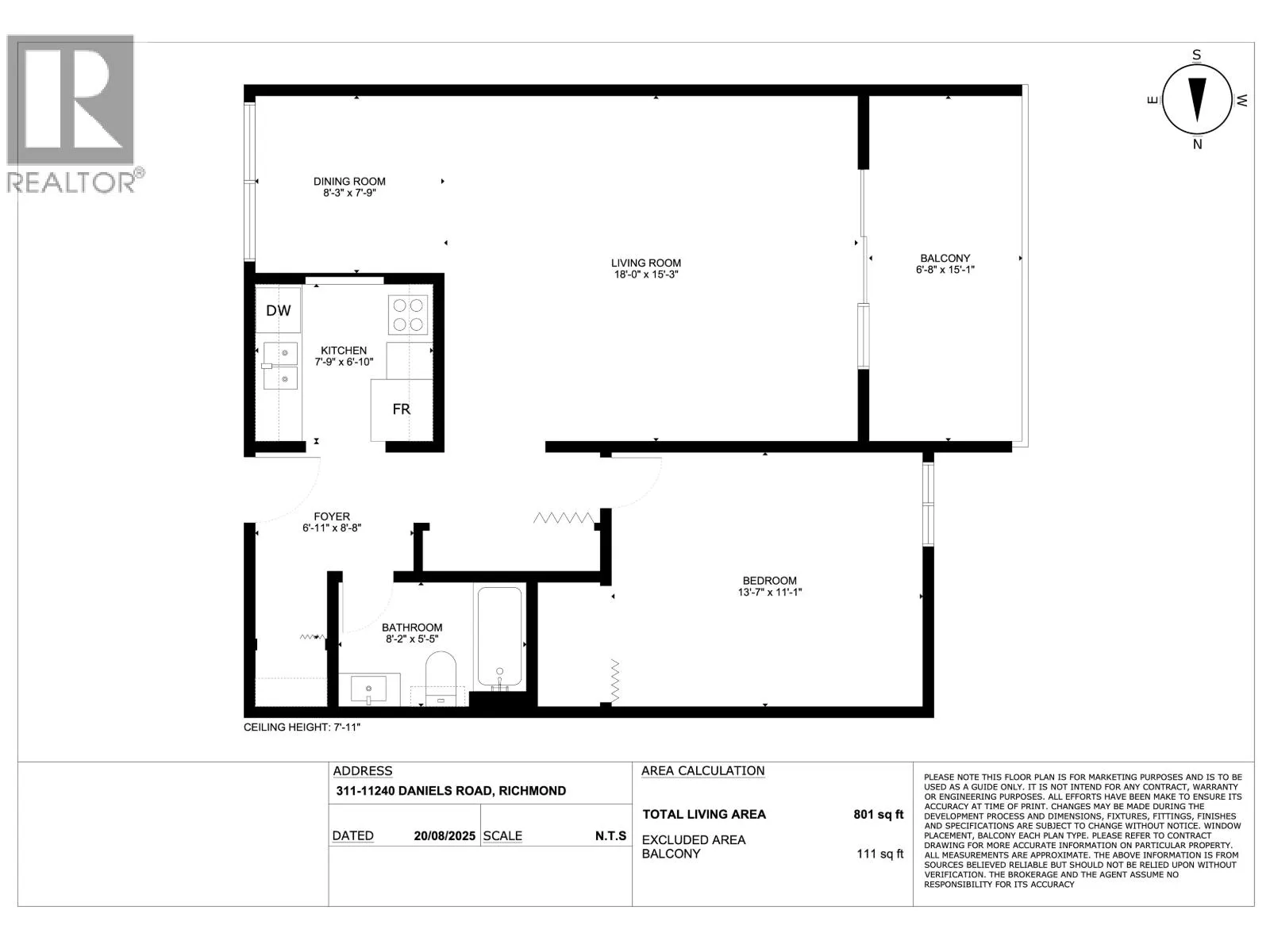
Daniels Manor - the best value in the East Cambie neighbourhood! This bright and spacious top-floor 801 sqft one-bedroom unit is a quiet inside home featuring a functional floor plan, a large living room, generously sized bedroom that easily fits a king-size bed, and a large balcony with a serene treed view. Renovations completed in 2021 include a new bathroom, light fixtures, carpet, fresh paint, and countertops. The building has undergone extensive updates, including the building envelope, rain screen, roof, elevator, boiler, balconies, windows, sliding door, fencing and landscaping. The strata fee covers hot water and heating. One parking stall and one storage locker are included. Convenient location in a serene suburban setting beside Albert Airey Park and playground. (id:27476)

Property Highlights

MLS® Number
R3073916
Type
Single Family
Maintenance Fee
502.51
Ownership Type
Strata
Parking Space Total
1

Building

Building Type
Apartment
Square Footage
801 sqft
Bathrooms Total
1
Bedrooms Total
1
Amenities
Shared Laundry Recreation, Shopping
Fireplace Present
No
Basement Type
Basement Features
Building Heating Type
Baseboard heaters, Hot Water
Heating Fuel
Building Cooling Type

Location