11493 Seabrook Crescent, Richmond, British Columbia V7A 3H2

Listed for:
$1,180,000
3 beds
2 baths
Listed 19 days ago
Duplex for rent: 11493 Seabrook Crescent, Richmond, British Columbia V7A 3H2

View all 27 photos

About

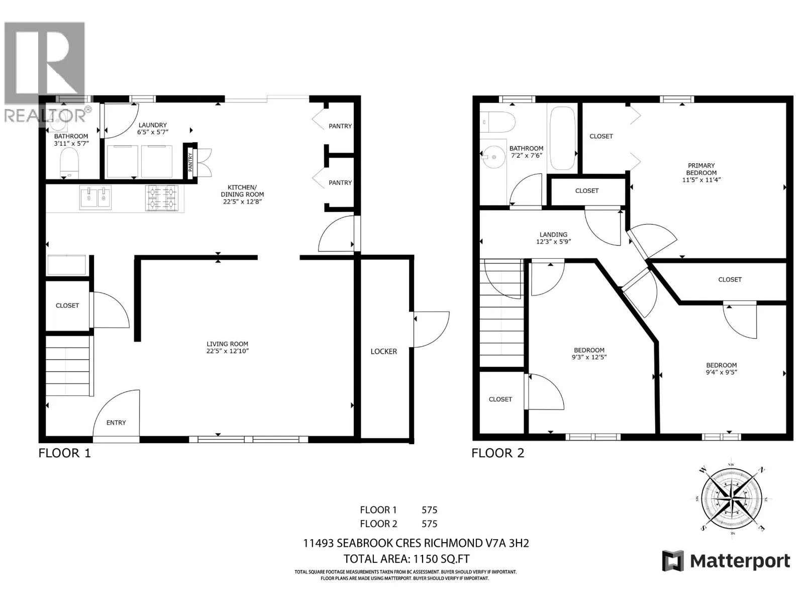
Fantastic opportunity in the desirable Ironwood neighbourhood of Richmond. This freehold half-duplex home (not a townhouse) offers no strata fees and sits on a rare 5,600+ sq.ft. pie-shaped lot, priced below BC Assessment. South-facing and well maintained with extensive updates: 2023 fresh interior paint throughout including ceilings. 2024 new washer, range, double-glazed windows and patio door. 2025 brand-new kitchen cabinets, stone countertops, ceramic tile kitchen floor, wood flooring throughout, new dryer, new carport roofing and fenced yard. Features include a secured side storage room and two separate lane accesses, offering excellent flexibility and strong future redevelopment or land assembly potential. 11491 Seabrook Crescent (the other side of the duplex) is also listed for sale. A rare lot size opportunity in Richmond, ideal to live in, hold or explore future possibilities. Open House: Feb 28 & Mar 1 2-4PM. (id:27476)

Property Highlights

MLS® Number
R3075447
Type
Single Family
Maintenance Fee
0.00
Ownership Type
Strata
Land Size
5635 sqft
Parking Space Total
2

Building

Building Type
Duplex
Square Footage
1150 sqft
Bathrooms Total
2
Bedrooms Total
3
Fireplace Present
No
Basement Type
Basement Features
Building Heating Type
Baseboard heaters
Heating Fuel
Electric
Building Cooling Type

Location

Learn more about this property
Listing provided by:
Nu Stream Realty Inc.
MLS® number:
R3075447
Agent:
Ken Cui
*Indicates required field
Name is required
Email is required
Please enter a valid phone number (e.g., 416-111-1111).