Rooms In Shared 12331 Mcneely Drive, Richmond, British Columbia V6V 2S3

Listed for:
$700
1 beds
1 baths
Listed 8 days ago
Row / Townhouse for rent: Rooms In Shared 12331 Mcneely Drive, Richmond, British Columbia V6V 2S3

View all 25 photos

About

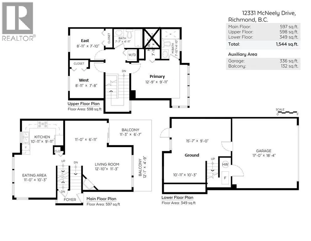
*PLEASE ANSWER QUESTIONS FOR RESPONSE* What's your name? When do you wish to start? How long do you wish to stay? What's your typical schedule? What is your income source? Can you follow strict house rules? What do you do in your free time? How often are you willing to pitch in for shared cleaning? What are the top 3 foods you cook most often? (we have allergies) What is your roommate experience? What is the best quality of being your roommate? What is the worst quality of being your roommate? Reason for moving? When do you wish to view? What questions do you have? ROOM for SINGLE ONLY in SHARED townhouse for clean, quiet, solvent housemates. Strict house rules. $700 Ground floor room shared bath $1000 Top floor primary room private bath +utilities 25% (~$100) +security deposit (id:27476)

Property Highlights

MLS® Number
R3080883
Type
Single Family

Building

Building Type
Row / Townhouse
Square Footage
1280 sqft
Bathrooms Total
1
Bedrooms Total
1
Amenities
Furnished, Laundry - In Suite, Shared Laundry
Fireplace Present
No
Basement Type
Basement Features
Building Heating Type
Heating Fuel
Building Cooling Type

Location

Learn more about this property
Listing provided by:
ABC Realty
MLS® number:
R3080883
Agent:
Emmy Pang
*Indicates required field
Name is required
Email is required
Please enter a valid phone number (e.g., 416-111-1111).