1187 3311 Ketcheson Road, Richmond, British Columbia V6X 0S4

Listed for:
$599,900
1 beds
1 baths
Listed 23 days ago
Apartment for rent: 1187 3311 Ketcheson Road, Richmond, British Columbia V6X 0S4

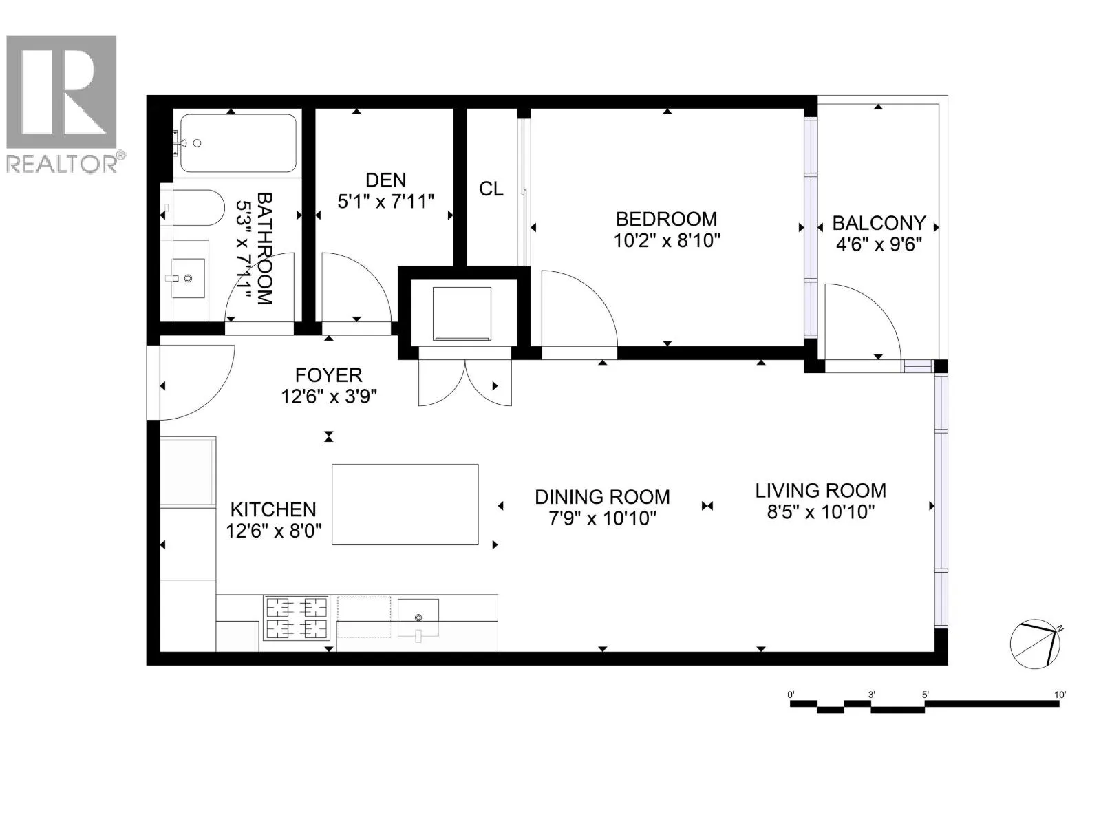
View all 15 photos

About

Concord Garden South Estate, Spacious 1 Bedroom and DEN is 567 square feet. Laminate flooring throughout, marble tile back-splash in kitchen/bathroom, high end appliances, wood veneer cabinetry, walk-in closet, central heating and air conditioning system. You could enjoy Diamond Club: indoor swimming pool, Sauna/steam room, hot tub, yoga room, basketball court, badminton court, bowling alley, gym, theatre, supermarkets, restaurants. A few minutes drive to Vancouver, airport, UBC. With the close proximity of the Canada Line Sky Train and new station at Capstan Way. (id:27476)

Property Highlights

MLS® Number
R3082765
Type
Single Family
Maintenance Fee
394.80
Ownership Type
Strata
Parking Space Total
1

Building

Building Type
Apartment
Square Footage
567 sqft
Bathrooms Total
1
Bedrooms Total
1
Amenities
Exercise Centre, Laundry - In Suite, Recreation Centre
Fireplace Present
No
Basement Type
Basement Features
Building Heating Type
Forced air
Heating Fuel
Building Cooling Type
Air Conditioned

Location

Learn more about this property
Listing provided by:
Magsen Realty Inc.
MLS® number:
R3082765
Agent:
Patrick Ding
*Indicates required field
Name is required
Email is required
Please enter a valid phone number (e.g., 416-111-1111).

Street Spotlight - For sale