4 4099 No. 4 Road, Richmond, British Columbia V6X 2M2

Listed for:
$975,000
3 beds
3 baths
Listed 51 days ago
Row / Townhouse for rent: 4 4099 No. 4 Road, Richmond, British Columbia V6X 2M2

View all 34 photos

About

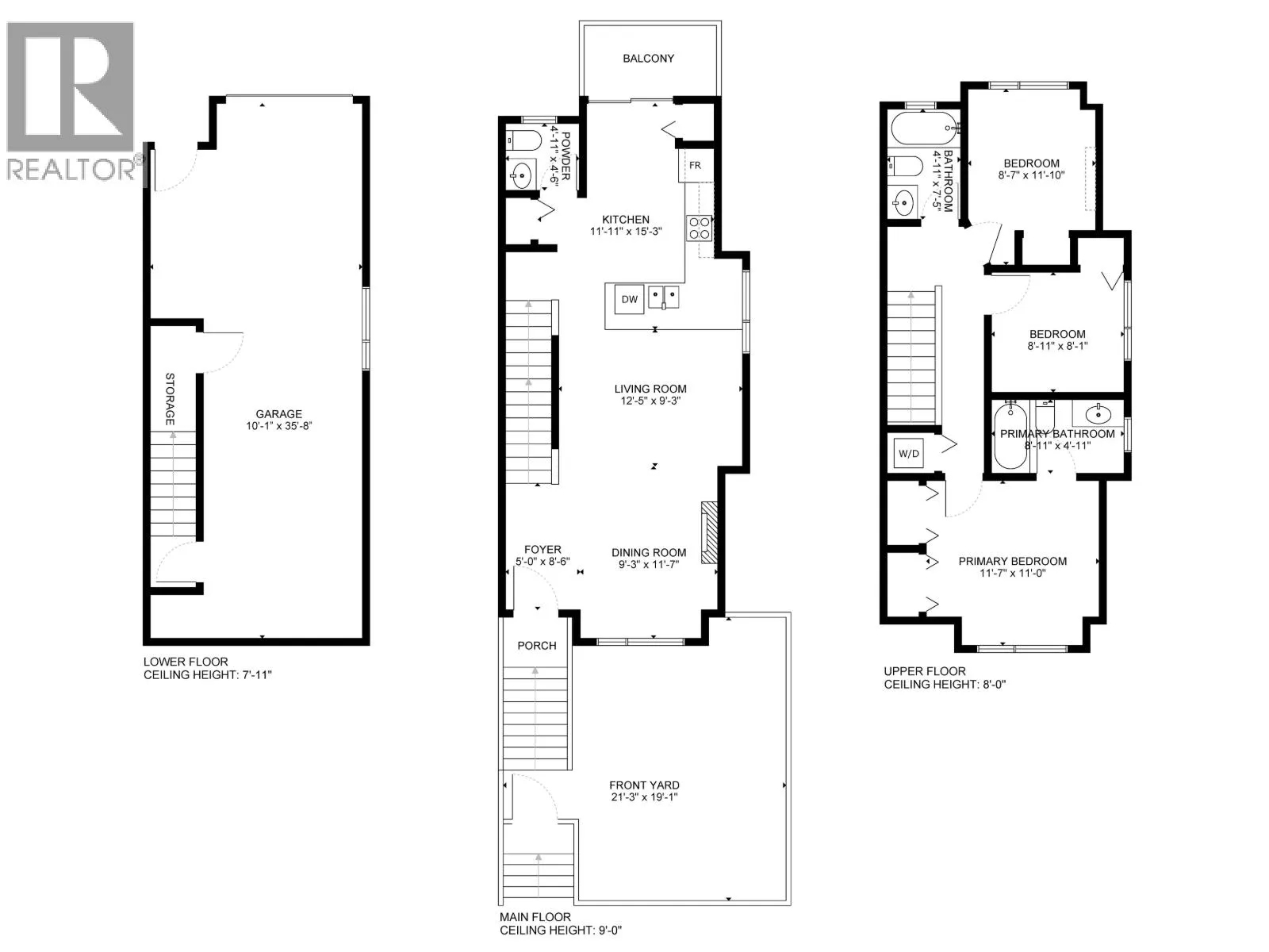
End Unit Townhouse with 1164 square ft of space located in central Richmond. A short walk to Tomsett Elementary School, MacNeill Secondary, French Immersion at Anderson & Whiteside Elementary & McRoberts Secondary. Bus stops are on No. 4 Rd for easy transit. Close to shopping malls (Aberdeen Centre YaoHan Centre, Walmart, & Lansdown Centre) and lots of amazing restaurants are close by. Tandem 2 Car Garage, 3 bedrooms up, master en-suite with tub / shower combo, 2nd full bath up, Stacked Laundry up. And there is a powder room on main for your guests! Nine Foot ceilings on main floor, laminate flooring on main floor, electric fire place, and central A/C using heat pump. Open concept kitchen with patio off back for your BBQ. This unit is tenanted and needs 48 hours notice to show. (id:27476)

Property Highlights

MLS® Number
R3088296
Type
Single Family
Maintenance Fee
327.66
Ownership Type
Strata
Parking Space Total
1

Building

Building Type
Row / Townhouse
Square Footage
1164 sqft
Bathrooms Total
3
Bedrooms Total
3
Amenities
Laundry - In Suite Shopping
Fireplace Present
No
Basement Type
Basement Features
Building Heating Type
Forced air
Heating Fuel
Electric, Natural gas
Building Cooling Type

Location

Learn more about this property
Listing provided by:
Royal Pacific Realty (Kingsway) Ltd.
MLS® number:
R3088296
Agent:
George S Gomory
*Indicates required field
Name is required
Email is required
Please enter a valid phone number (e.g., 416-111-1111).

Street Spotlight - For sale