4 11191 Horseshoe Way, Richmond, British Columbia V7A 4S5

Listed for:
$2,688,000
0 beds
0 baths
Listed 30 days ago
4 11191 Horseshoe Way, Richmond, British Columbia V7A 4S5

View all 33 photos

About

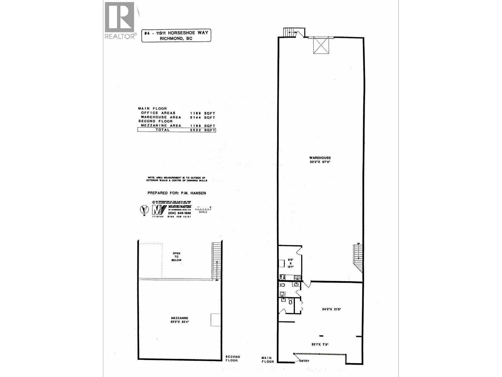
Flexible, functional, and strategically located, position your business in the heart of Riverside Industrial Park at 4-11191 Horseshoe Way. This IB1-zoned strata warehouse offers 5,522 SF total, including 1,189 SF of improved office space with two bathrooms, 3,144 SF of clear-span warehouse with 20' ceilings, full loading dock and above grade-level bay with dock leveler, plus kitchen/meeting area, and 1,189 SF of second-floor mezzanine space. Four parking stalls included with additional visitor parking available. IB1 zoning permits 25+ uses, providing exceptional flexibility for a broad range of businesses. Currently a vacant tenanted property offering versatility for both owner-users and investors. The existing tenant is open to early lease termination, presenting a strong opportunity for an owner-occupier seeking near-term possession. Alternatively, investors can secure stable income of $7,822.83 per month through February 2028, increasing to $8,052.92 per month until 2031. Easy to show! (id:27476)

Property Highlights

MLS® Number
C8076628
Type
Industrial
Maintenance Fee
606.28

Building

Square Footage
5522 sqft
Fireplace Present
No
Basement Type
Basement Features
Building Heating Type
Heating Fuel
Building Cooling Type

Location

Learn more about this property
Listing provided by:
Oracle Realty Ltd.
MLS® number:
C8076628
Agent:
Poul R Dempster
*Indicates required field
Name is required
Email is required
Please enter a valid phone number (e.g., 416-111-1111).

Street Spotlight - For sale