11231 Cutter Place, Richmond, British Columbia V7E 4R2

Listed for:
$2,590,000
5 beds
5 baths
Listed 24 days ago
House for rent: 11231 Cutter Place, Richmond, British Columbia V7E 4R2

View all 30 photos

About

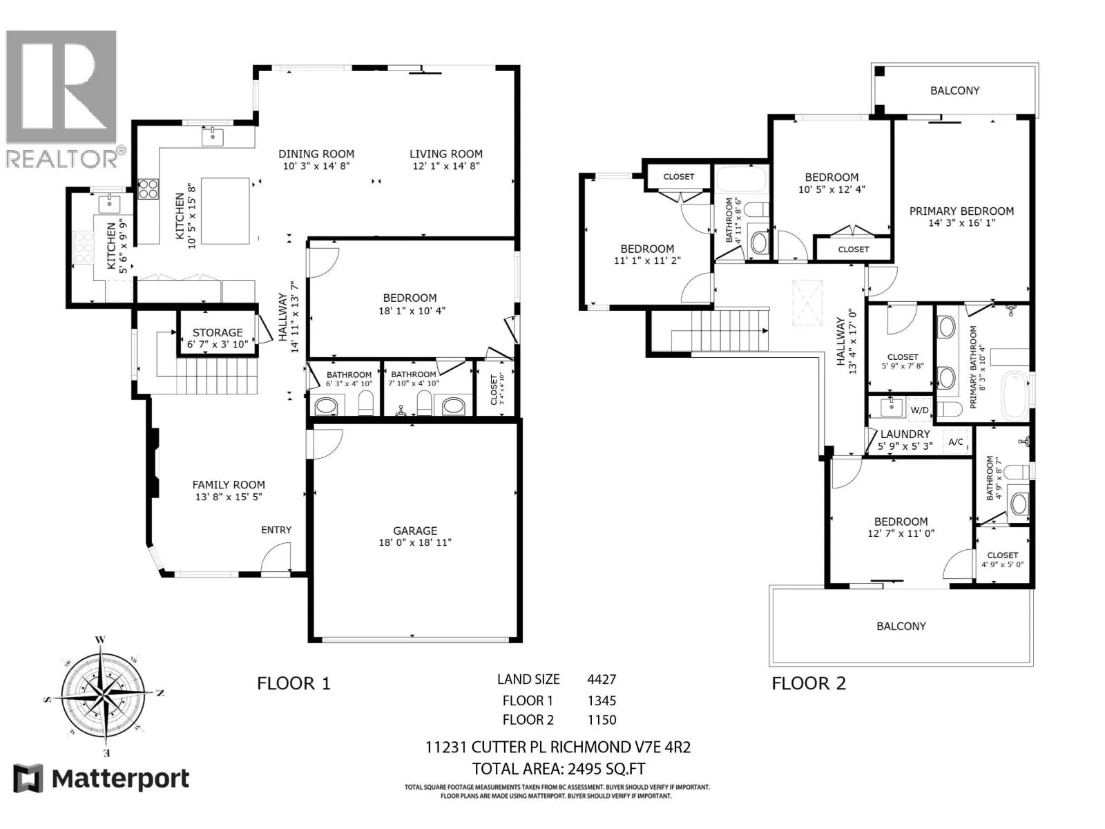
This brand-new 5-bedroom, 5-bathroom luxury home in Steveston features a bright open-concept layout with soaring high ceilings, a gourmet kitchen and a wok kitchen equipped with premium appliances, and spacious living and dining areas perfect for entertaining. Upstairs offers 4 generously sized bedrooms, including a stunning primary suite with a spa-inspired ensuite and ample closet space. Downstairs come with a private in-law suite with a separate entrance, ideal for extended family or guests or even a home office. Quality craftsmanship is showcased throughout with custom millwork, designer finishes, and a double garage with epoxy floor. Walking distance to highly ranked McMath Secondary and Westwind Elementary, as well as parks, shops, and Steveston Village. (id:27476)

Property Highlights

MLS® Number
R3097886
Type
Single Family
Ownership Type
Freehold
Land Size
4427 sqft
Parking Space Total
4

Building

Building Type
House
Square Footage
2495 sqft
Bathrooms Total
5
Bedrooms Total
5
Fireplace Present
Yes
Basement Type
Basement Features
Building Heating Type
Radiant heat
Heating Fuel
Building Cooling Type
Air Conditioned

Location

Learn more about this property
Listing provided by:
Nu Stream Realty Inc.
MLS® number:
R3097886
Agent:
Sam Chen
*Indicates required field
Name is required
Email is required
Please enter a valid phone number (e.g., 416-111-1111).