3300 Jesmond Avenue, Richmond, British Columbia V7E 1C3

Listed for:
$3,300,000
5 beds
6 baths
Listed 20 days ago
House for rent: 3300 Jesmond Avenue, Richmond, British Columbia V7E 1C3

View all 31 photos

About

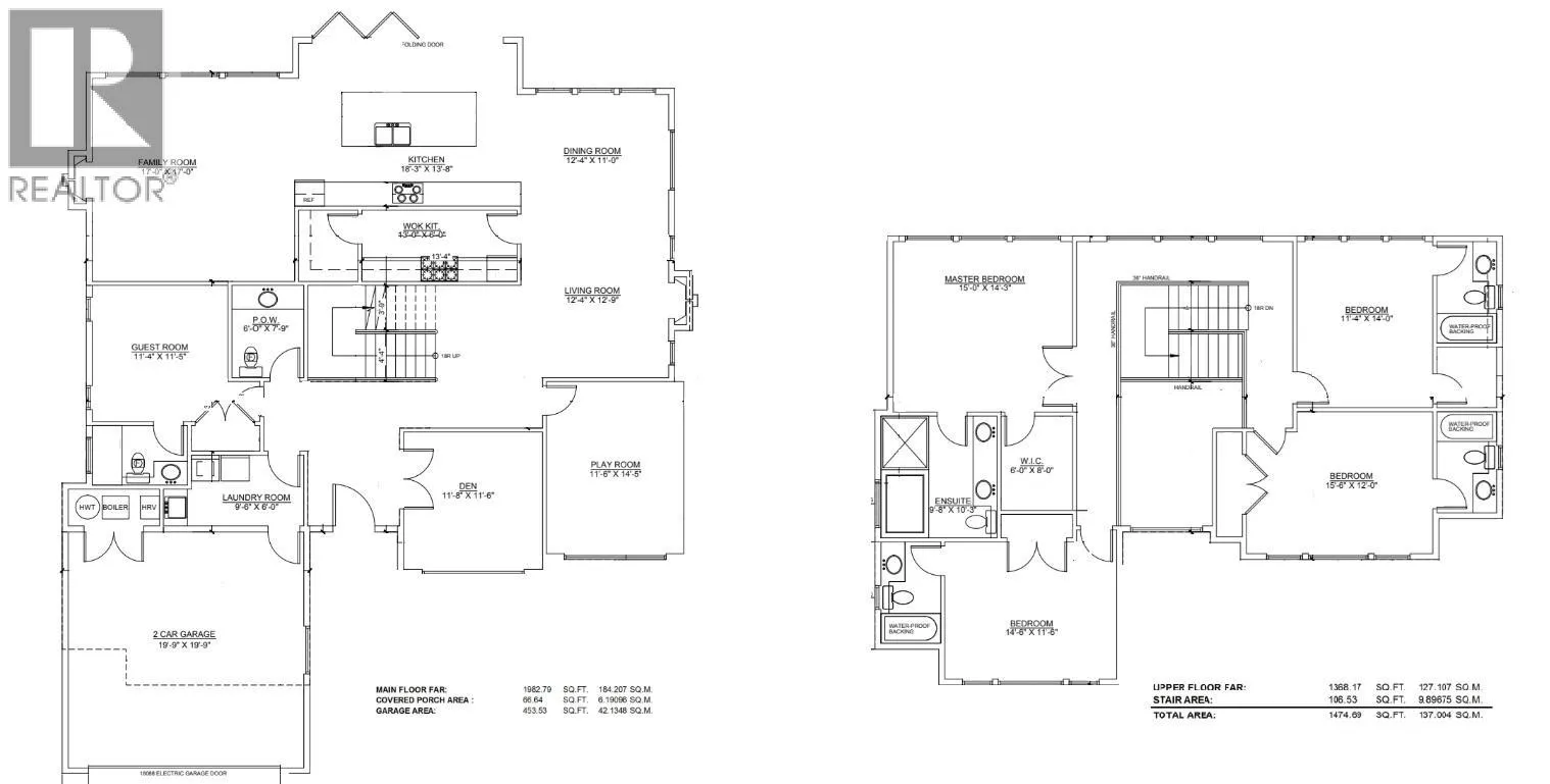
Stunning luxury home in Richmond´s highly sought-after Seafair neighbourhoo. This exquisite custom masterpiece was designed & built by Georgie Award Finalist Westcoast Signature Homes. Welcome to unparalleled craftsmanship & thoughtful design. This exceptional custom residence redefines modern luxury & effortless entertaining. This well-maintained residence offers a functional layout with generous living & dining areas, abundant natural light, and quality finishes throughout. The spacious kitchen connects seamlessly to the family room and dining. The experience is further elevated by massive 15-foot European accordion doors that fold away, completely opening the chef´s kitchen to the sun-drenched, south-facing backyard. The custom floating stairs, framed by striking stone walls, create a dramatic entryway. Quality construction throughout with 10' ceilings, HEPA filter, HRV system, Thermador appliances, and Lutron automation. Five spacious ensuites, including a luxurious primary.Bonus, a perfect yard for kids. (id:27476)

Property Highlights

MLS® Number
R3099626
Type
Single Family
Ownership Type
Freehold
Land Size
7036 sqft
Parking Space Total
2

Building

Building Type
House
Square Footage
3352 sqft
Bathrooms Total
6
Bedrooms Total
5
Fireplace Present
Yes
Basement Type
Basement Features
Building Heating Type
Hot Water
Heating Fuel
Building Cooling Type

Location

Learn more about this property
Listing provided by:
Oakwyn Realty Ltd.
MLS® number:
R3099626
Agent:
Dee Bhangle
*Indicates required field
Name is required
Email is required
Please enter a valid phone number (e.g., 416-111-1111).