3400 Highway 3, Rock Creek, British Columbia V0H 1Y0

Listed for:
$995,000
4 beds
3 baths
Listed 64 days ago
House for rent: 3400 Highway 3, Rock Creek, British Columbia V0H 1Y0

View all 33 photos

About

Looking for a big shop? Here is 1800 sqft (60x30) works shop w/ 13 ft high ceiling, vehicle door around back, power, 220/110, wood stove, and a small vented paint room. The workshop also an attached lean-to for more space (60x15). Not enough room? There is a truck garage (35x20) with over height ceiling and an insulated loft area. Then there is a double car garage (42x22). And lastly a (35x24) pole barn, for your tractor or hay. But what about the house? Well that's big too. Over 2500 sqft on 2 levels. The master bedroom is on the main floor w/ ensuite, plus 2 bedrooms and bath upstairs for guests or kids. Need a 4th bedroom? There is a large bedroom on the main or use as a multi-flex room. To keep warm in winter there a Tulikivi Soapstone Wood Heater and Natural Gas. Very private acreage of almost 10 acres has trees, grasslands, slope and benches. Upper area of the property has a fenced garden. There is room for some smaller livestock but you would need to fence. You need to see this property to appreciate everything here. This property is in the no restriction area for foreign buyers. (id:27476)

Property Highlights

MLS® Number
10379338
Type
Single Family
Ownership Type
Freehold
Land Size
9.71 ac|5 - 10 acres
Parking Space Total
6

Building

Building Type
House
Storeys
2.00
Square Footage
2276 sqft
Bathrooms Total
3
Bedrooms Total
4
Exterior Finish
Vinyl siding
Fireplace Present
No
Basement Type
Crawl space
Basement Features
Building Heating Type
Forced air, See remarks
Heating Fuel
Building Cooling Type

Utilities

Water
Well
Utility Sewer
Septic tank

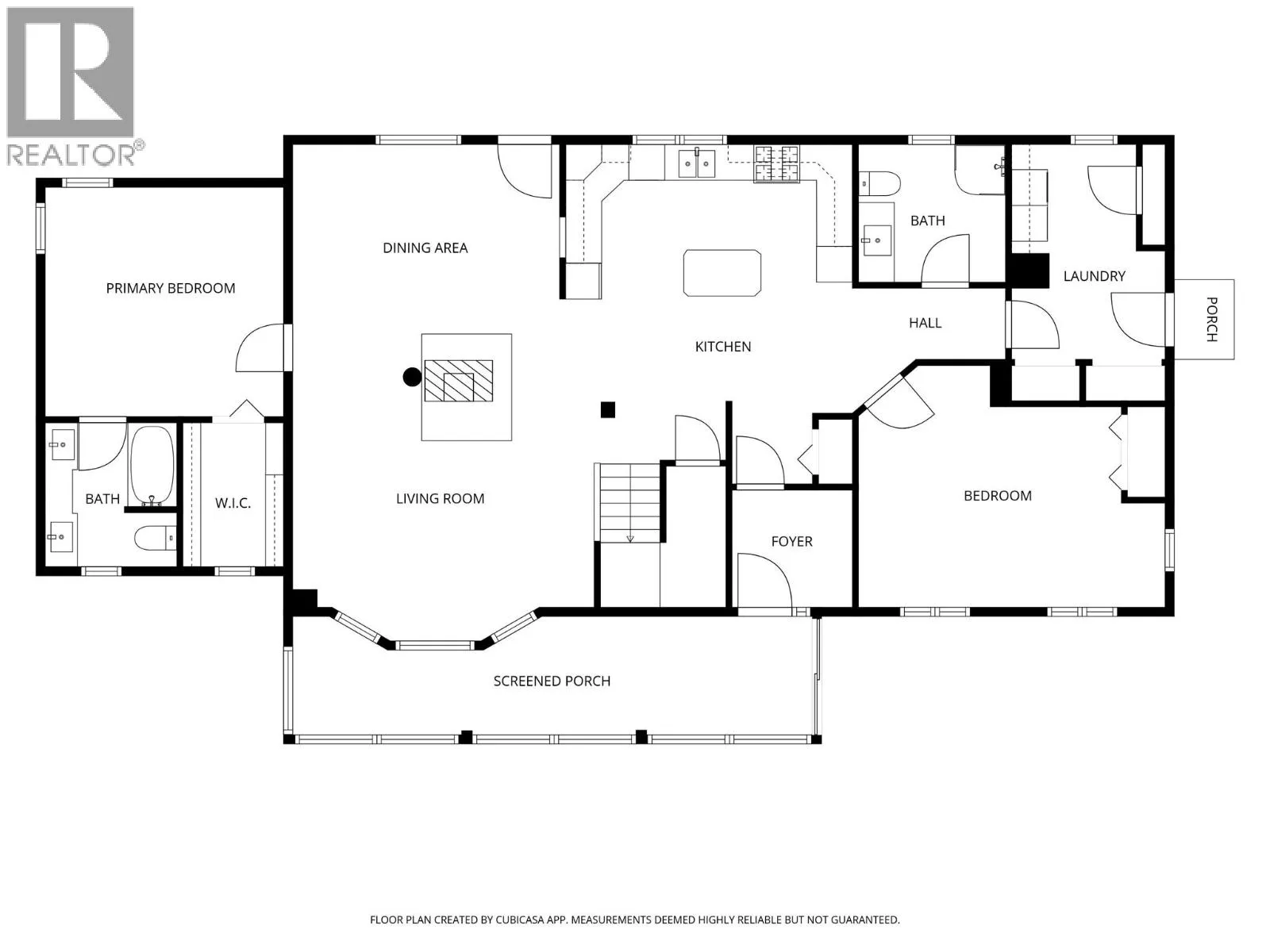
Room Layout

Bedroom
Second level
15'0'' x 13'0''
Bedroom
Second level
17'0'' x 11'0''
5pc Bathroom
Second level
Measurements not available
Sunroom
Main level
29'0'' x 7'0''
Bedroom
Main level
17'0'' x 13'0''
Mud room
Main level
11'0'' x 9'0''
Primary Bedroom
Main level
13'0'' x 12'0''
Living room
Main level
15'0'' x 13'0''
Laundry room
Main level
8'0'' x 7'0''
Kitchen
Main level
15'0'' x 13'0''
Foyer
Main level
11'0'' x 5'0''
4pc Ensuite bath
Main level
Measurements not available
Dining room
Main level
15'0'' x 13'0''
2pc Bathroom
Main level
Measurements not available

Location

Learn more about this property
Listing provided by:
Royal LePage Desert Oasis Rlty
MLS® number:
10379338
Agent:
Jennifer Brock
*Indicates required field
Name is required
Email is required
Please enter a valid phone number (e.g., 416-111-1111).