Lt 38 Ruxton Rd, Ruxton Island, British Columbia V0R 1X7

Listed for:
$624,900
3 beds
1 baths
Listed 14 days ago
House for rent: Lt 38 Ruxton Rd, Ruxton Island, British Columbia V0R 1X7

View all 51 photos

Learn more about this property
Listing provided by:
Real Broker
MLS® number:
1004452
Agent:
Josh Wood
*Indicates required field
Name is required
Email is required
Please enter a valid phone number (e.g., 416-111-1111).

About

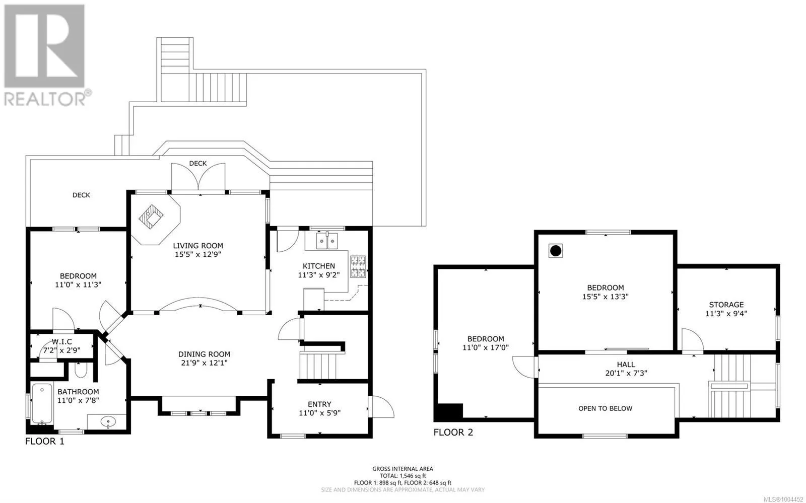
This exquisite 0.57-acre walk-on waterfront property offers a rare blend of seclusion, comfort, and timeless craftsmanship. Accessible by boat, Ruxton is an off-grid gem nestled between Vancouver Island and the mainland where the pace slows, and nature takes centre stage. The home itself is solid and refined a 3-bedroom + den retreat built to an exceptional standard, designed to weather the seasons with grace. Inside, you'll find warm, inviting spaces and panoramic views that blur the lines between indoors and out. Your gaze will constantly be drawn the ocean from nearly every room. Wake up to the sound of waves lapping the shore, sip your coffee on the deck as seals glide by, and end your day with a sky full of stars and the soft hush of the tide. This is more than a property it’s a lifestyle rooted in tranquility, peace, and presence. An extraordinary offering for those ready to unplug, unwind, and truly arrive. Measurements are approximate. Verify all measurements and data if important. (id:27476)

Property Highlights

MLS® Number
1004452
Type
Single Family
Ownership Type
Freehold
Land Size
0.57 ac

Building

Building Type
House
Square Footage
1546 sqft
Bathrooms Total
1
Bedrooms Total
3
Fireplace Present
Yes
Basement Type
Basement Features
Building Heating Type
Heating Fuel
Wood
Building Cooling Type
None

Location

Street Spotlight - For sale