1204 Knockan Pl, Saanich, British Columbia V8Z 7L5

Listed for:
$1,699,980
6 beds
3 baths
Listed 59 days ago
House for rent: 1204 Knockan Pl, Saanich, British Columbia V8Z 7L5

View all 71 photos

Learn more about this property
Listing provided by:
Sutton Group West Coast Realty
MLS® number:
1014249
Agent:
Jaclyn Mcmillan
*Indicates required field
Name is required
Email is required
Please enter a valid phone number (e.g., 416-111-1111).

About

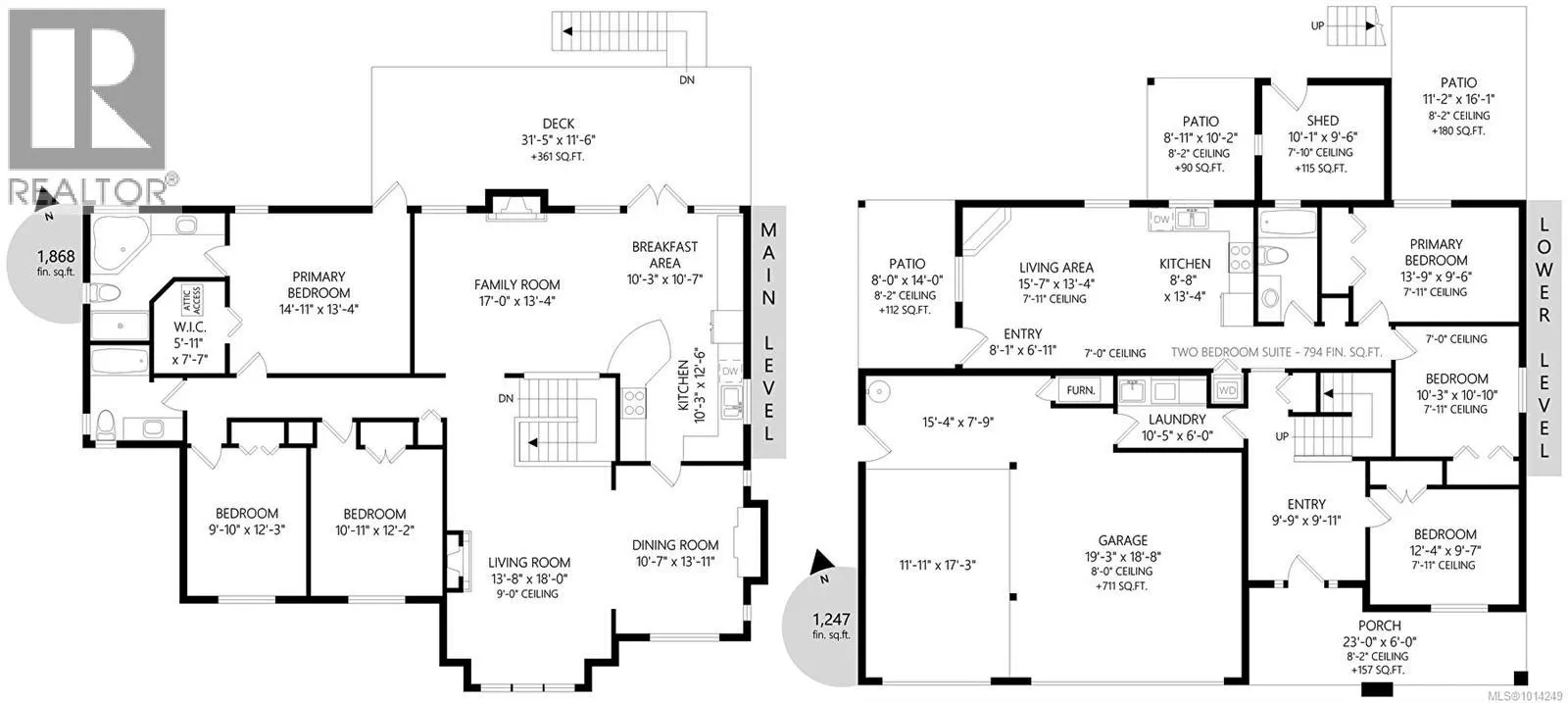
Welcome to the private and sought-after Knockan Hill community! This beautifully maintained 6-bedroom, 3-bathroom home offers a rare blend of space, elegance, and versatility, perfect for families or investors. The main home features a triple-car garage with tons of parking and high-end finishings throughout. On the lower level, you’ll find a spacious entry, a versatile bedroom/office, and a large laundry room. Upstairs, light pours into the formal family room with a cozy gas fireplace and south-facing windows. A separate dining room also boasts south facing windows and lots of space. Around the corner you'll find a second inviting living room with another gas fireplace, and an eating nook seamlessly connected to the chef’s kitchen—complete with a gas stove, wood cabinetry, abundant storage, peninsula seating, and access to a large sunny deck. The upper floor also offers two generous sunny bedrooms, a full bath, and a luxurious primary suite with walk-in closet and spa-inspired ensuite with soaker tub. The legal 2-bedroom suite (almost 800 sq.ft.) with private entry provides excellent income potential or space for extended family. Outdoors, enjoy a huge, private backyard with garden plots, mature hedges, and plenty of room for entertaining or relaxing. This home truly has its all-space, privacy, quality, and location! (id:27476)

Property Highlights

MLS® Number
1014249
Type
Single Family
Ownership Type
Freehold
Land Size
8119 sqft
Parking Space Total
9

Building

Building Type
House
Square Footage
3826 sqft
Bathrooms Total
3
Bedrooms Total
6
Fireplace Present
Yes
Basement Type
Basement Features
Building Heating Type
Baseboard heaters, Heat Pump
Heating Fuel
Electric, Natural gas
Building Cooling Type
Air Conditioned

Location