3933 Saanich Rd, Saanich, British Columbia V8X 1Y7

Listed for:
$1,159,000
3 beds
2 baths
Listed 135 days ago
House for rent: 3933 Saanich Rd, Saanich, British Columbia V8X 1Y7

View all 39 photos

About

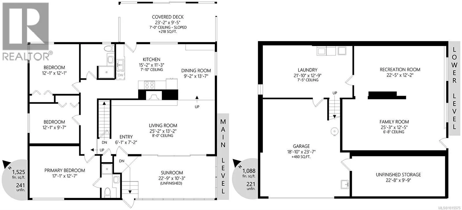
This new renovated home features a bright open kitchen with brand-new stainless appliances, sunken living room, enclosed sunroom. The main level offers three bedrooms and two bathrooms, including a rare 3-piece ensuite for this vintage. Enjoy seasonal views of Swan Lake Bird Sanctuary from living room and adjacent enclosed sunroom. Full-height, easily suite-able basement offers endless potential. Updates include thermal vinyl windows and new laminate floors. Double garage, ample storage, and an 8,000+ sq. ft. lot with room for kids, pets, or gardens. Located close to Saanich Centre, Uptown Shopping Centre, and the Swan Lake walking loop, direct transit to UVic or downtown, this home combines character, comfort, and convenience in one of Saanich’s most desirable areas. (id:27476)

Property Highlights

MLS® Number
1015575
Type
Single Family
Maintenance Fee
0.00
Ownership Type
Freehold
Land Size
8090 sqft
Parking Space Total
2

Building

Building Type
House
Square Footage
3535 sqft
Bathrooms Total
2
Bedrooms Total
3
Fireplace Present
Yes
Basement Type
Basement Features
Building Heating Type
Baseboard heaters
Heating Fuel
Electric
Building Cooling Type
None

Location

Learn more about this property
Listing provided by:
Sutton Group West Coast Realty
MLS® number:
1015575
Agent:
Sean Wen
*Indicates required field
Name is required
Email is required
Please enter a valid phone number (e.g., 416-111-1111).

Street Spotlight - For sale