5 3903 Douglas St, Saanich, British Columbia V8X 5L3

Listed for:
$785,000
3 beds
2 baths
Listed 11 days ago
Row / Townhouse for rent: 5 3903 Douglas St, Saanich, British Columbia V8X 5L3

View all 29 photos

About

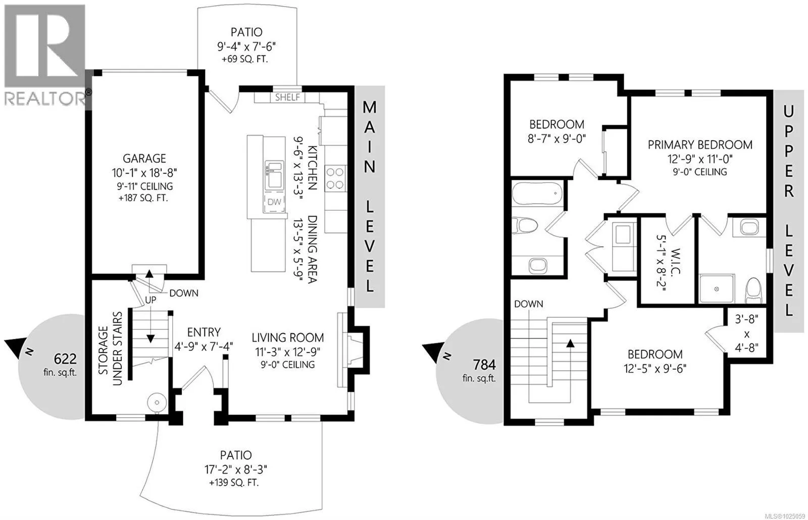
End unit. Zebra Designed townhome perched above Swan Lake. 2 level 1406 sq ft. home with main level private car garage. Main floor features a gourmet kitchen with quartz counters, island with raised bar, loads of cupboards, and stainless appliances. Combo dining/living area is spacious with linear fireplace. 3 bedrooms upstairs, with side by side front loader washer/dryer. Single garage, and driveway parking. Fenced perfectly landscaped front yard with patio, plantings + grass. Walk to uptown, parks, shopping, restaurants + trails around Swan Lake! Close to UVIC. (id:27476)

Property Highlights

MLS® Number
1025059
Type
Single Family
Community Name
Ellipse
Maintenance Fee
693.00
Ownership Type
Strata
Land Size
1315 sqft
Parking Space Total
1

Building

Building Type
Row / Townhouse
Square Footage
1593 sqft
Bathrooms Total
2
Bedrooms Total
3
Fireplace Present
Yes
Basement Type
Basement Features
Building Heating Type
Baseboard heaters
Heating Fuel
Electric
Building Cooling Type
None

Location

Learn more about this property
Listing provided by:
Pemberton Holmes Ltd.
MLS® number:
1025059
Agent:
Bill Liu
*Indicates required field
Name is required
Email is required
Please enter a valid phone number (e.g., 416-111-1111).

Street Spotlight - For sale