1204 Knockan Pl, Saanich, British Columbia V8Z 7L5

Listed for:
$1,599,980
6 beds
3 baths
Listed 28 days ago
House for rent: 1204 Knockan Pl, Saanich, British Columbia V8Z 7L5

View all 83 photos

About

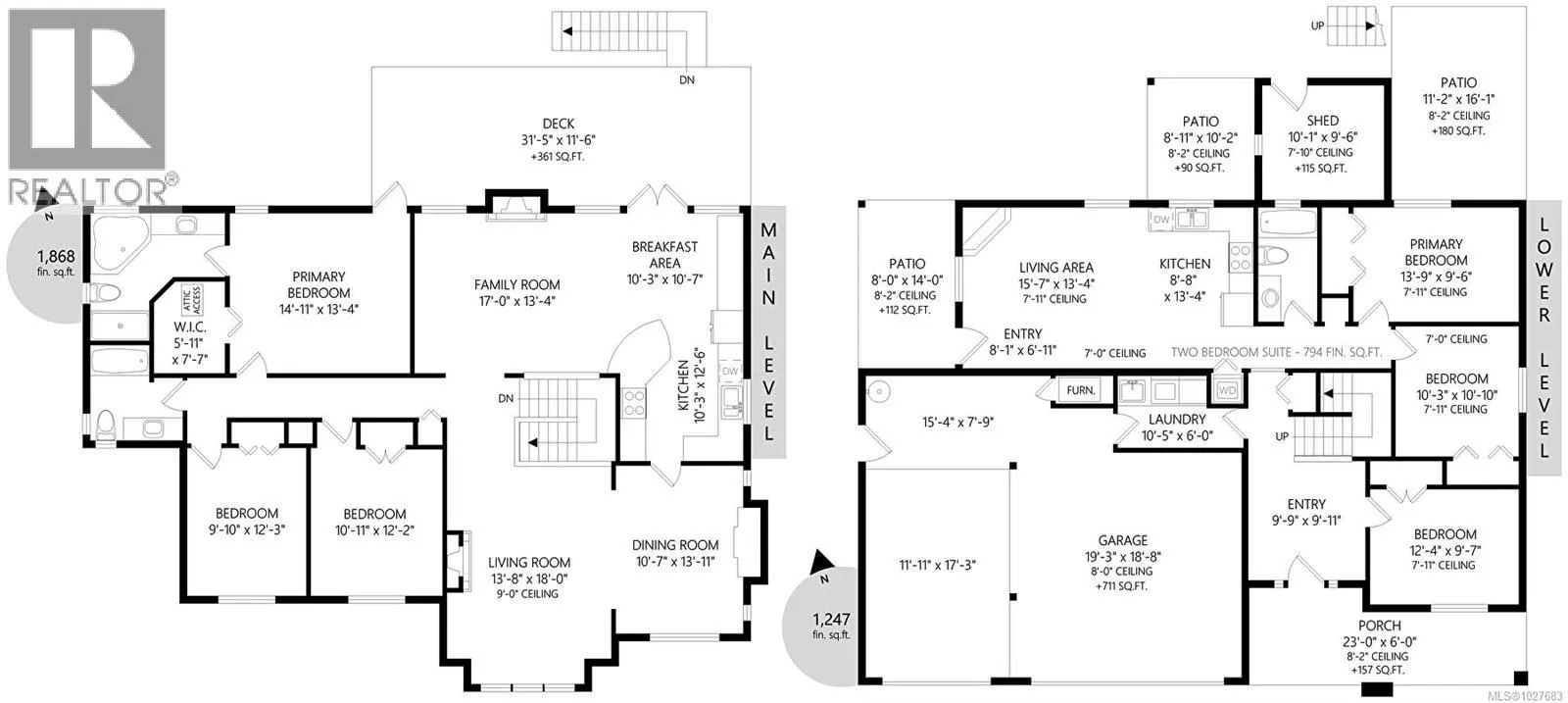
Welcome to the private and sought-after Knockan Hill community! This beautifully maintained 6-bedroom, 3-bathroom home offers a rare blend of space, elegance, and versatility, perfect for families or investors. The main home features a triple-car garage with tons of parking and high-end finishings throughout. On the lower level, you’ll find a spacious entry, a versatile bedroom/office, and a large laundry room. Upstairs, light pours into the formal family room with a cozy gas fireplace and south-facing windows. A separate dining room also boasts south facing windows and lots of space. Around the corner you'll find a second inviting living room with another gas fireplace, and an eating nook seamlessly connected to the chef’s kitchen—complete with a gas stove, wood cabinetry, abundant storage, peninsula seating, and access to a large sunny deck. The upper floor also offers two generous sunny bedrooms, a full bath, and a luxurious primary suite with walk-in closet and spa-inspired ensuite with soaker tub. The 2-bedroom in-law suite (almost 800 sq.ft.) with private entry provides excellent income potential or space for extended family. Outdoors, enjoy a huge, private backyard with garden plots, mature hedges, and plenty of room for entertaining or relaxing. This home truly has its all-space, privacy, quality, and location! (id:27476)

Property Highlights

MLS® Number
1027683
Type
Single Family
Ownership Type
Freehold
Land Size
8119 sqft
Parking Space Total
9

Building

Building Type
House
Square Footage
3115 sqft
Bathrooms Total
3
Bedrooms Total
6
Fireplace Present
Yes
Basement Type
Basement Features
Building Heating Type
Baseboard heaters, Heat Pump
Heating Fuel
Electric, Natural gas
Building Cooling Type
Air Conditioned

Location

Learn more about this property
Listing provided by:
Sutton Group West Coast Realty
MLS® number:
1027683
Agent:
Jaclyn Mcmillan
*Indicates required field
Name is required
Email is required
Please enter a valid phone number (e.g., 416-111-1111).