4040 Holland Ave, Saanich, British Columbia V8Z 5K1

Listed for:
$2,650,000
3 beds
2 baths
Listed 46 days ago
House for rent: 4040 Holland Ave, Saanich, British Columbia V8Z 5K1

View all 90 photos

About

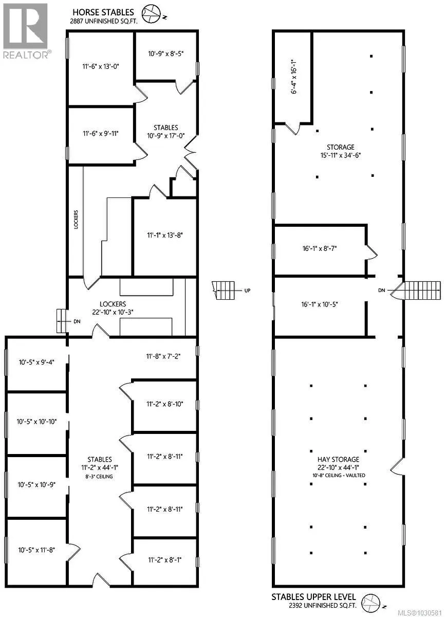
Located in the desirable neighbourhood of Saanich West near VGH, this rare 5-acre rectangular property offers the perfect blend of country living and urban convenience. Set within the ALR and on municipal water, this property is ideal for equestrian or hobby farm use and includes an established horse-boarding operation. The property is fully equipped for horse enthusiasts, featuring multiple paddocks with capacity for approximately 20 horses, a large 12-stall barn with hay storage, tack areas and lockers, and a 139’ x 67’ riding arena with power and drainage—perfect for year-round and evening use. There are two dwellings on the property. The main home offers a bright living/dining area with a gas fireplace, a spacious kitchen, 2 bedrooms, a 3-piece bath, and a versatile family/rec room (or potential primary suite) with a fireplace. A deck overlooks the property and the surrounding valley. The second dwelling provides additional family or rental space with open-concept living/dining, a full kitchen with an eating nook, a primary bedroom with deck access, and a 4-piece bath. Ample parking for multiple vehicles, trucks and RVs, the property features a horseshoe driveway with easy access throughout the property. An active horse-boarding business operates on-site. Showings are by appointment only for pre-qualified buyers. Call your Realtor for more information. (id:27476)

Property Highlights

MLS® Number
1030581
Type
Single Family
Ownership Type
Freehold
Land Size
5 ac
Parking Space Total
10

Building

Building Type
House
Square Footage
2363 sqft
Bathrooms Total
2
Bedrooms Total
3
Fireplace Present
Yes
Basement Type
Basement Features
Building Heating Type
Baseboard heaters
Heating Fuel
Electric, Natural gas
Building Cooling Type
None

Location

Learn more about this property
Listing provided by:
Pemberton Holmes Ltd. - Oak Bay
MLS® number:
1030581
Agent:
Ram Raman
*Indicates required field
Name is required
Email is required
Please enter a valid phone number (e.g., 416-111-1111).