371 Alexander Street Unit# 101, Salmon Arm, British Columbia V1E 4H7

Listed for:
$398,000
0 beds
0 baths
Listed 108 days ago
Retail for rent: 371 Alexander Street Unit# 101, Salmon Arm, British Columbia V1E 4H7

View all 14 photos

About

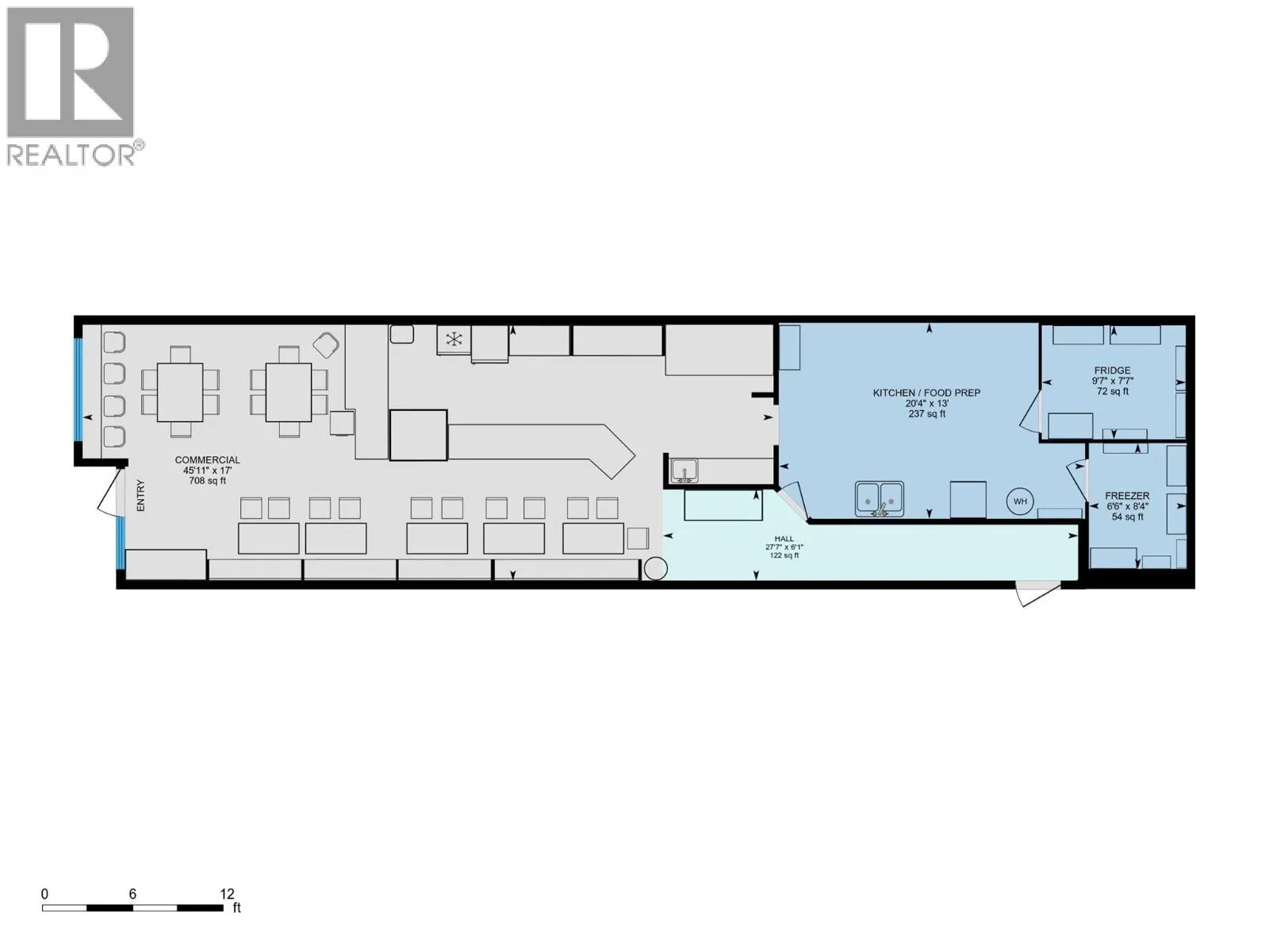
Prime location! This 1,387 square foot retail strata unit is situated in the heart of downtown. Formerly operated as a bistro/cafe, it features a walk-in cooler and freezer, coffee bar and food prep area, spacious seating/dining area, and kitchen space ready for your finishing touches. Access to shared washrooms and directly front Alexander Street allowing for prime exposure and foot traffic. Move in immediately and customize the kitchen for your food service business or adapt the space for a variety of other potential uses. A very rare opportunity to own your own retail space downtown Salmon Arm. Why rent? (id:27476)

Property Highlights

MLS® Number
10369254
Type
Retail
Maintenance Fee
524.13
Land Size
0.41 ac|under 1 acre

Building

Building Type
Retail
Square Footage
1387 sqft
Fireplace Present
No
Basement Type
Basement Features
Building Heating Type
Other
Heating Fuel
Building Cooling Type
Central air conditioning

Utilities

Water
Municipal water
Utility Sewer
Municipal sewage system

Location

Learn more about this property
Listing provided by:
RE/MAX Shuswap Realty
MLS® number:
10369254
Agent:
Craig Shantz
*Indicates required field
Name is required
Email is required
Please enter a valid phone number (e.g., 416-111-1111).