2086 Yankee Flats Road, Salmon Arm, British Columbia V1E 3J3

Listed for:
$989,000
3 beds
3 baths
Listed 84 days ago
House for rent: 2086 Yankee Flats Road, Salmon Arm, British Columbia V1E 3J3

View all 99 photos

About

Beautiful 8.28-Acre Property in Yankee Flats – Salmon Valley This well-kept 3 bedroom, 3 bathroom home sits on 8.28 acres in the peaceful Yankee Flats area of Salmon Valley. The full-length deck offers stunning valley views overlooking the property and stretching out toward Mt. Ida. The main level features level entry access, a bright kitchen, and open dining and living areas complete with a real wood-burning fireplace. The primary bedroom includes a convenient 2-piece ensuite, and the laundry is located on the main floor just off the spacious front entrance. The walk-out basement offers an additional bedroom, a family/rec room, and plenty of storage space. The home is efficiently heated with in-floor electric boiler heat (with wood option) Outside, the property is well set up for horses or hobby farming. You’ll find fenced paddocks, covered parking, and a stall barn with two box stalls. There’s also a 14’ x 24’ workshop, hay storage, and multiple horse shelters throughout the paddocks. The shallow well provides a good water supply, and the land offers a mix of open and treed areas with lots of room for equipment storage or future buildings. Enjoy privacy and space, all just 20 minutes from Salmon Arm. (id:27476)

Property Highlights

MLS® Number
10370802
Type
Single Family
Ownership Type
Freehold
Land Size
8.28 ac|5 - 10 acres
Parking Space Total
10

Building

Building Type
House
Storeys
2.00
Square Footage
2492 sqft
Bathrooms Total
3
Bedrooms Total
3
Amenities
Recreation
Exterior Finish
Vinyl siding
Fireplace Present
Yes
Basement Type
Full
Basement Features
Building Heating Type
In Floor Heating, Other, Stove, See remarks
Heating Fuel
Electric, Wood
Building Cooling Type

Utilities

Water
Dug Well
Utility Sewer
Septic tank

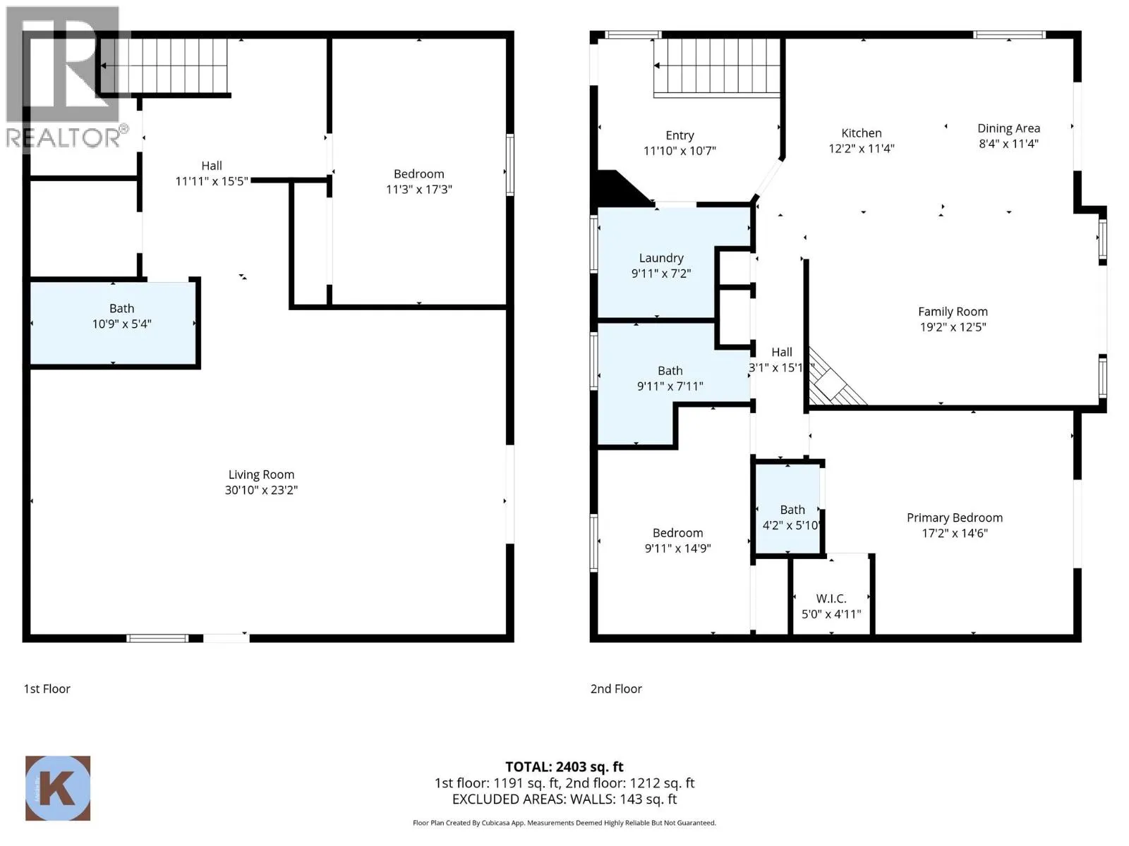
Room Layout

Other
Basement
14'0'' x 13'0''
Other
Basement
14'0'' x 24'0''
Other
Basement
13'0'' x 23'0''
Other
Basement
10'0'' x 17'0''
Other
Basement
15'0'' x 15'0''
Other
Basement
11'0'' x 16'0''
Utility room
Basement
7'0'' x 15'3''
Storage
Basement
13'8'' x 5'11''
Bedroom
Basement
10'6'' x 17'3''
Family room
Basement
30'10'' x 23'2''
3pc Bathroom
Basement
5'1'' x 10'4''
3pc Ensuite bath
Main level
4'3'' x 5'11''
Primary Bedroom
Main level
17'3'' x 14'7''
Bedroom
Main level
10'0'' x 14'11''
4pc Bathroom
Main level
7'11'' x 10'0''
Laundry room
Main level
7'8'' x 7'2''
Foyer
Main level
11'0'' x 12'0''
Living room
Main level
19'8'' x 13'1''
Dining room
Main level
8'4'' x 10'11''
Kitchen
Main level
10'4'' x 10'11''

Location

Learn more about this property
Listing provided by:
Coldwell Banker Executives Realty
MLS® number:
10370802
Agent:
Russell Armstrong
*Indicates required field
Name is required
Email is required
Please enter a valid phone number (e.g., 416-111-1111).