127 Bittancourt Rd, Salt Spring, British Columbia V8K 2K2

Listed for:
$1,290,000
4 beds
3 baths
Listed 22 days ago
House for rent: 127 Bittancourt Rd, Salt Spring, British Columbia V8K 2K2

View all 36 photos

Learn more about this property
Listing provided by:
Macdonald Realty Salt Spring Island
MLS® number:
1017778
Agent:
Sandra Smith
*Indicates required field
Name is required
Email is required
Please enter a valid phone number (e.g., 416-111-1111).

About

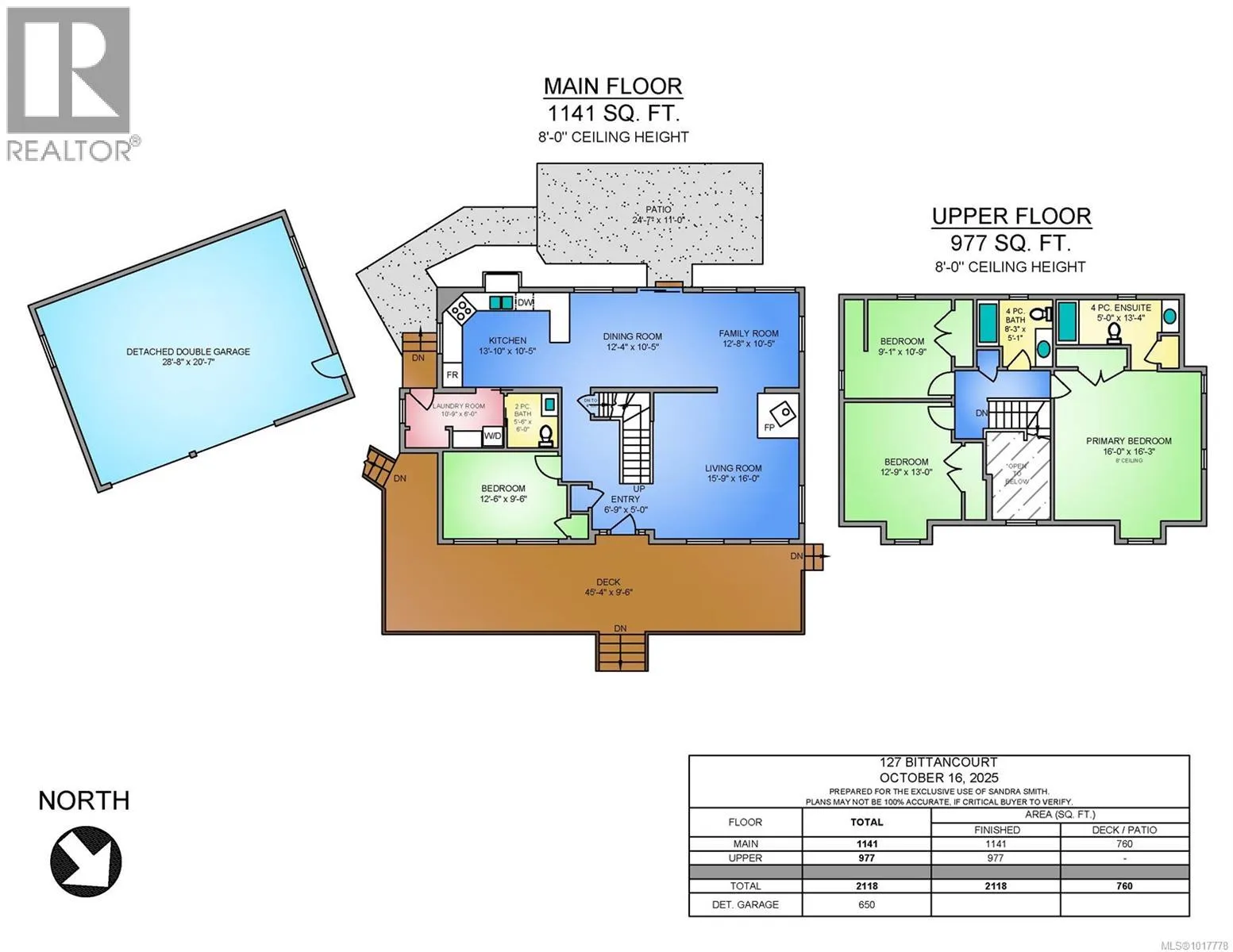
Just a short stroll from town, this charming Cape Cod–style classic offers timeless appeal and modern comfort on a private, sun-soaked .92-acre property with lovely peek-a-boo ocean views. Bright and inviting, the 2,100 sq ft home features four bedrooms and three bathrooms, providing ample space for family and guests. The spacious country kitchen flows beautifully into a light-filled dining area, while the cozy living room wood stove adds a warm ambience. Enjoy morning coffee or evening sunsets from the welcoming front porch overlooking the lush yard and glimpses of the ocean. A 600 sq ft heated garage doubles as a workshop or hobby space, and there’s additional dry storage in the easy-access heated 5 ft crawlspace. A great home that perfectly blends comfort, space, and island convenience. (id:27476)

Property Highlights

MLS® Number
1017778
Type
Single Family
Ownership Type
Freehold
Land Size
0.92 ac
Parking Space Total
4

Building

Building Type
House
Square Footage
2118 sqft
Bathrooms Total
3
Bedrooms Total
4
Fireplace Present
Yes
Basement Type
Basement Features
Building Heating Type
Baseboard heaters
Heating Fuel
Electric, Wood
Building Cooling Type
None

Location