248 Suneagle Dr, Salt Spring, British Columbia V8K 1E5

Listed for:
$2,697,000
6 beds
5 baths
Listed 71 days ago
House for rent: 248 Suneagle Dr, Salt Spring, British Columbia V8K 1E5

View all 90 photos

About

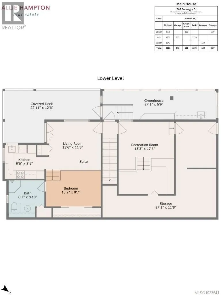
An Iconic Salt Spring Estate with Views, Versatility, and Income. Set on 5 private acres on a sun-drenched west-facing slope, this exceptional Salt Spring Island estate offers panoramic ocean views and unforgettable sunset—an ideal setting for those seeking a refined island lifestyle with space, privacy, and flexibility. The 4,000+ sq.ft. Craftsman-inspired main residence features vaulted fir ceilings, teak floors, expansive picture windows, a chef’s kitchen, spa-inspired ensuite, and generous decks designed for seamless indoor-outdoor living. A self-contained one-bedroom suite provides ideal accommodation for guests, an on-site caretaker, or extended family—perfect for buyers relocating to the island and seeking added support or flexibility. A separate two-bedroom cottage offers additional living or hosting options, while the substantial 3,000 sq.ft. studio/workshop allows space for creative pursuits, home-based business use, or secure RV or boat storage. Two separate entrances enhance privacy and functionality, supporting multi-generational living or phased relocation. Fire-resistant construction, an advanced potable water purification system, and thoughtful infrastructure provide peace of mind, sustainability, and resilience. At the heart of the estate, a fully landscaped acre of gardens with fruit trees, roses, mature plantings, and winding paths creates a tranquil sanctuary that evolves beautifully through the seasons. This is a rare opportunity to relocate to Salt Spring Island without compromise—where lifestyle, adaptability, and long-term value converge. Explore the possibilities and experience this remarkable island estate firsthand—not to be missed. For further details or to arrange a private introduction, please contact Allie Hampton, Realtor® with BRIX Real Estate Group, powered by REAL Broker. (id:27476)

Property Highlights

MLS® Number
1023641
Type
Single Family
Ownership Type
Freehold
Land Size
5.45 ac
Parking Space Total
10

Building

Building Type
House
Square Footage
6849 sqft
Bathrooms Total
5
Bedrooms Total
6
Fireplace Present
Yes
Basement Type
Basement Features
Building Heating Type
Baseboard heaters, Forced air, Heat Pump
Heating Fuel
Wood, Other
Building Cooling Type
Central air conditioning

Location

Learn more about this property
Listing provided by:
Real Broker B.C. Ltd.
MLS® number:
1023641
Agent:
Allie Hampton
*Indicates required field
Name is required
Email is required
Please enter a valid phone number (e.g., 416-111-1111).