130 Seaview St, Sayward, British Columbia V0P 1R0

Listed for:
$348,000
3 beds
1 baths
Listed Today
House for rent: 130 Seaview St, Sayward, British Columbia V0P 1R0

View all 45 photos

About

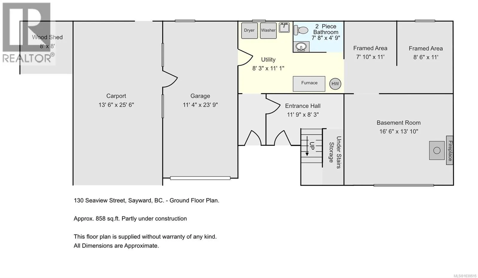
Looking for a little sweat equity here is your opportunity in this beautiful ocean view home located in the Village of Sayward just waiting for your finishing touches. Loads of potential in this well built home , basement is partially finished with a separate suite all with a separate entrance for the perfect mortgage helper or for the in-laws. Upstairs is 3 bedroom 1 bathroom, large kitchen , dining and living room with cozy woodstove insert for the those cool winter evenings all with amazing ocean and mountain views. Close to the Marina. Priced far below property assessment and quick possession is possible. (id:27476)

Property Highlights

MLS® Number
1030515
Type
Single Family
Ownership Type
Freehold
Parking Space Total
4

Building

Building Type
House
Square Footage
1209 sqft
Bathrooms Total
1
Bedrooms Total
3
Fireplace Present
Yes
Basement Type
Basement Features
Building Heating Type
Forced air
Heating Fuel
Electric, Wood
Building Cooling Type
None

Location

Learn more about this property
Listing provided by:
Royal LePage Advance Realty
MLS® number:
1030515
Agent:
Susan Mallinson
*Indicates required field
Name is required
Email is required
Please enter a valid phone number (e.g., 416-111-1111).