79 2785 Wallbank Rd, Shawnigan Lake, British Columbia V8H 2A5

Listed for:
$225,000
2 beds
1 baths
Listed 14 days ago
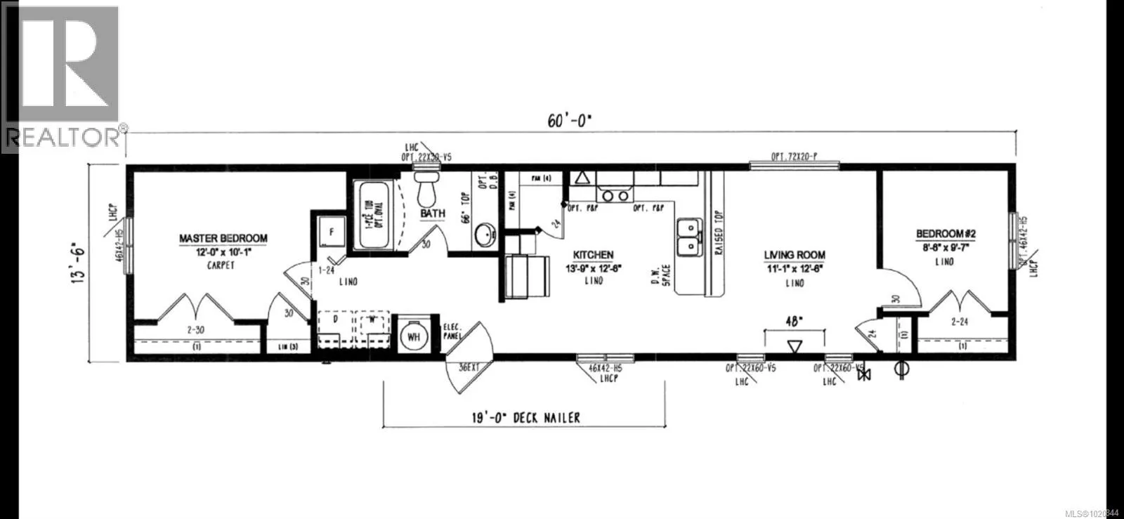
Manufactured Home for rent: 79 2785 Wallbank Rd, Shawnigan Lake, British Columbia V8H 2A5

View all 33 photos

Learn more about this property
Listing provided by:
eXp Realty
MLS® number:
1020844
Agent:
Trevor Friesen
*Indicates required field
Name is required
Email is required
Please enter a valid phone number (e.g., 416-111-1111).

About

Modern, low-maintenance living in beautiful Shawnigan Lake! This bright and inviting 810 sq ft (2017) manufactured home offers an open-concept layout with a sleek, modern kitchen, an energy-efficient heat pump for year-round comfort, and excellent bedroom separation with two bedrooms positioned on opposite ends of the home. Step outside and enjoy the spacious covered deck—perfect for morning coffee, outdoor dining, or unwinding in every season. Located in a quiet, well-kept home park, this property offers exceptional convenience. You’re just a short walk to the lake, village shops, services, cafés, and beach access, making everyday living both easy and enjoyable. Shawnigan Lake is one of the Cowichan Valley’s most beloved communities—renowned for its relaxed lakeside lifestyle, natural beauty, and small-town charm. Centered around a warm, swimmable freshwater lake, the area is a favourite destination for boating, paddle boarding, water skiing, fishing, and long summer days by the water. Outdoor enthusiasts also appreciate the many nearby trails and recreation spots, including the famous Kinsol Trestle and West Shawnigan Lake Provincial Park. Positioned just minutes from Mill Bay and offering a comfortable commute to both Victoria and Duncan, Shawnigan Lake provides the perfect balance of peaceful rural living with quick access to city amenities. This home is an ideal opportunity for retirees, first-time buyers, or downsizers seeking comfort, convenience, and a true Vancouver Island lifestyle. (id:27476)

Property Highlights

MLS® Number
1020844
Type
Single Family
Community Name
Shawnigan Lake MHP
Maintenance Fee
675.00
Ownership Type
Leasehold
Parking Space Total
2

Building

Building Type
Manufactured Home
Square Footage
947 sqft
Bathrooms Total
1
Bedrooms Total
2
Fireplace Present
No
Basement Type
Basement Features
Building Heating Type
Heat Pump
Heating Fuel
Building Cooling Type
Air Conditioned, Wall unit

Location