15 7450 Butler Rd, Sooke, British Columbia V9Z 1N1

Listed for:
$1,449,900
2 beds
4 baths
Listed 144 days ago
House for rent: 15 7450 Butler Rd, Sooke, British Columbia V9Z 1N1

View all 44 photos

About

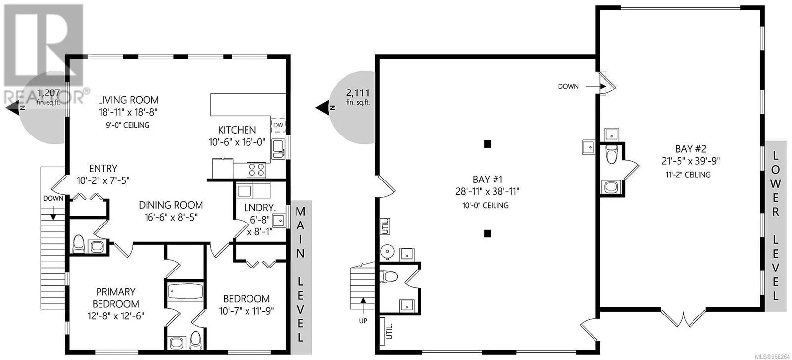
Amazing Opportunity to Buy a completely fenced, flat 0.25-acre 2019-built, Commercial and Industrial property. Two work bays you could easily rent out 1 side of the industrial as there are 2 work bays below 2100 + sqft as follows: 29 feet x 39 feet 2 piece bathroom is one bay, and the second bay is 21 feet x 40 feet with a 2-piece bathroom. The residential living area upstairs is an open floorplan featuring a 1200 sqft well-kept legal 2 bedroom suite, literally live where you work? Or have a place where you can house employees or generate rental income. Ideal for a Car Collector, Business Operation that needs secure space, Lots of secure parking on the property. The seller has smartly put in a 3000-gallon underground cistern, Located at #15-7450 Butler Rd, near the CRD building in Sooke's Business Park. Close to Poirer and Young Lake , 5 minutes drive to Sooke Core.45 minutes to downtown Victoria. (id:27476)

Property Highlights

MLS® Number
966264
Type
Single Family
Maintenance Fee
164.00
Ownership Type
Strata
Land Size
10890 sqft
Parking Space Total
8

Building

Building Type
House
Square Footage
3318 sqft
Bathrooms Total
4
Bedrooms Total
2
Fireplace Present
No
Basement Type
Basement Features
Building Heating Type
Baseboard heaters
Heating Fuel
Building Cooling Type
None

Location

Learn more about this property
Listing provided by:
Maxxam Realty Ltd.
MLS® number:
966264
Agent:
Shayne Fedosenko
*Indicates required field
Name is required
Email is required
Please enter a valid phone number (e.g., 416-111-1111).